Các mẫu nhà ống 2 mặt tiền đang có xu hướng thịnh hành trong đô thị ngày nay. Mẫu thiết kế mang lại sự tiện nghi và thẩm mỹ tối đa cho chủ nhà. Cùng tham khảo mẫu thiết kế nhà ống 2 mặt tiền của anh Đức, Hai Bà Trưng, Hà Nội để đưa ra sự lựa chọn đúng đắn cho ngôi nhà của mình nhé.

Mục lục
Thông tin chung của công trình
- Diện tích sàn: 60(m2)
- Tổng diện xây dựng: 320(m2 )
- Chủ đầu tư: Anh Đức
- Địa chỉ : Võ thị Sáu – Hai Bà Trưng – Hà Nội
- Thiết kế : KTS: Nguyễn Đắc Thạnh, Nguyễn văn Thành.
- Đơn vị thiết kế : Công ty TNHH tư vấn thiết kế kiến trúc và xây dựng Trang Kim
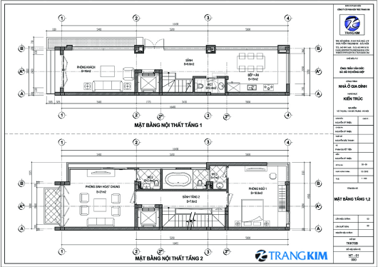
Mặt bằng thiết kế nhà ống 2 mặt tiền
Mặt bằng tầng 1, tầng 2

Mặt bằng thiết kế nhà ống 2 mặt tiền – Tầng 2
Mặt bằng tầng 3, tầng 4

Mặt bằng thiết kế nhà ống 2 mặt tiền – Tầng 4
Mặt bằng tầng 5

Mặt bằng thiết kế nhà ống 2 mặt tiền – Tầng 5
Hình ảnh phối cảnh thiết kế nhà ống 2 mặt tiền

Phối cảnh thiết kế nhà ống 2 mặt tiền – Góc 1

Phối cảnh thiết kế nhà ống 2 mặt tiền – Góc 2

Phối cảnh thiết kế nhà ống 2 mặt tiền – Góc 3

Phối cảnh thiết kế nhà ống 2 mặt tiền – Góc 4
Chi phí
| Gói dịch vụ | Nội dung | SL | Đơn giá | Thành tiền |
| Thiết kế kiến trúc | Hồ sơ bao gồm:Kiến trúc, kết cấu, điện nước | 320 m2 | 120.000 | 38.400.000 Vnd |
Cảm ơn bạn đã cùng chúng tôi đi hết bài viết này. Nếu bạn cần tìm hiểu những hình mẫu khác cho căn biệt thự của mình bạn có thể tham khảo thêm:
Và nếu bạn cần thêm sự tư vấn từ những chuyên gia giàu kinh nghiệm, đừng ngần ngại, hãy gọi ngay cho chúng tôi theo số 0985 999 895 (Zalo) hay email Gửi tư vấn, hoặc đơn giản hơn bạn chỉ cần để lại yêu cầu kèm số điện thoại của bạn thông qua FB Chat của Trang Kim. Chúng tôi sẽ liên hệ lại bạn trong thời gian sớm nhất.
Chúc bạn sớm tìm được một công trình như ý !

