Bạn có đang muốn xây dựng một ngôi nhà biệt thự? Căn nhà dưới đây sẽ gửi đến bạn một giải pháp cho không gian sống của mình. Thiết kế biệt thự chỉ với 2 tầng nhà cùng với mái thái hiện đại, nhưng nó vẫn đáp ứng đầy đủ một không gian riêng biệt và tiện nghi cho cả gia đình. Cùng đến với thị trấn Sóc Sơn, đến với gia đình anh Nhã, chị Minh để thấy điều đó nhé.
Mục lục
Thông tin cơ bản về công trình
Đầu tiên sẽ là những thông tin cơ bản của mẫu biệt thự 2 tầng mái thái. Với những thông tin về diện tích, vị trí xây dựng bạn có thể đánh giá sự phù hợp của công trình với biệt thự tương lai của mình. Thông tin cơ bản của biệt thự như sau:
- Diện tích đất: 582 (m2)
- Diện tích sàn xây dựng tầng 1: 150(m2
- Diện tích sàn xây dựng tầng 2: 135(m2
- Tổng diện xây dựng: 285(m2)
- Chủ đầu tư: Anh Nhã, Chị Minh
- Địa chỉ: Thị trấn Sóc Sơn, thành phố Hà Nội
- Thiết kế: Công ty TNHH kiến trúc và đầu tư xây dựng Trang Kim

Phối cảnh tổng thể kiến trúc biệt thự
Đây là phối cảnh tổng thể căn nhà biệt thự của anh Nhã, chị Minh ở thị trấn Sóc Sơn. Có thể thấy ngôi nhà được tạo nên từ những hình khối đơn giản đặc trưng của phong cách kiến trúc hiện đại. Màu sơn lựa chọn sáng màu, là sự kết hợp tinh tế giữa màu trắng và vàng chanh khiến căn biệt thự càng trở nên tươi tắn, hiện đại.
Điểm nhấn nằm ở phần mái nhà màu đen như một nét chấm phá để làm nổi bật những gam màu sáng. Phần mái thái màu đen cũng mang đến nét đẹp khác biệt so với những công trình xung quanh biệt thự.
Không chỉ mang một vẻ ngoài hiện đại, công năng sử dụng của biệt thự 2 tầng mái thái cũng là điểm sáng chúng tôi muốn gửi đến. Mời bạn xem qua thiết kế chi tiết phía dưới nhé.
Yêu cầu công năng sử dụng của gia chủ
- Mặt bằng Tầng 1: cổng tường rào, sân chơi + để ô tô, tam cấp + tiền sảnh 15m2, phòng khách + không gian thờ 29m2, cầu thang bộ + sảnh tầng 12m2, wc 4.4 m2, bếp 12m2, ăn 19m2 , phòng ngủ 1 – 17m2 , phòng ngủ 2 – 17m2, sân gia công + wc – 8 m2.
- Mặt bằng Tầng 2: Phòng sinh hoạt chung – 29m2, phòng ngủ 3 – 17m2, phòng ngủ 4 – 17m2, phòng ngủ 5 – 14m2, cầu thang + sảnh tầng 18m2, wc -4,4m2. Sân phơi + wc 17m2.
Mặt bằng thiết kế biệt thự 2 tầng mái thái hiện đại
Mặt bằng định vị công trình
Biệt thự 2 tầng mái thái được xây dựng trên lô đất rộng 582 m2, diện tích đất rộng đáng mơ ước. Hình dáng chữ L được thiết kế, quy hoạch hài hòa mang đến không gian sống thoải mái nhất cho gia chủ. Cạnh dài chữ L được định vị cho diện tích căn biệt thự 150 m2 và sân trước 150m2. Cạnh ngắn là một sân sau 100m2 giúp phía trước và trái nhà luôn thông thoáng.
Bao bọc quanh các khu vực chức năng là những thảm cỏ kết hợp trồng cây tiểu cảnh giúp tổng thể ngôi nhà tăng thêm những sắc xanh mát mẻ. Còn gì tuyệt vời hơn khi vừa được sống tiện nghi vừa được bao bọc bởi thiên nhiên xung quanh.

Mặt bằng định vị công trình
Vị trí cho nhà biệt thự được lùi sâu vào phía trong để ra một khoảng sân trước và sân sau giúp căn biệt thự 2 tầng tách biệt với mặt đường ồn ào. Khoảng sân rộng này cả gia đình có thể để xe, vui chơi, tập thể dục… tăng thêm tính gắn kết
Phần cổng vào cũng được thiết kế kiến trúc mái thái màu đen giống như phần mái biệt thự tạo một vẻ đẹp đồng nhất về kiến trúc. Cổng nhà thiết kế rộng 8m được chia là 2 khoang. 1 khoang lớn phục vụ nhu cầu ra vào của ô tô, khoang nhỏ hơn cho nhu cầu đi bộ và xe máy cho cả gia đình. Thiết kế trục giúp giảm thiểu kết cấu của cổng, đồng thời cũng mang đến tính riêng tư cho sinh hoạt của cả gia đình.
Mặt bằng thiết kế tầng 1
Bạn sẽ bước vào tiền sảnh tầng 1 khi đi qua khoảng sân xanh mát. Diện tích cho khoảng tiền sảnh là khoảng 6m2, không gian đủ rộng và trang trọng để bạn chào đón những vị khách. Ngoài ra tiền sảnh được thiết kế 2 cột vuông vững trãi cùng với mái thái hiện đại mang đến sự sang trọng cho mặt tiền biệt thự.
Bước vào bên trong sẽ là không gian phòng khách và phòng thờ có tổng diện tích là 29 m2. Bên trái là phòng khách và bên phải là khu vực thờ gia tiên. Tại mỗi không gian đều được thiết kế cửa sổ kính có thể đóng mở thoải mái giúp toàn bộ căn phòng tràn ngập ánh sáng tự nhiên và sự thông thoáng. Tại phòng khách bố trí một tivi hiện đại vừa tạo không gian sang trọng vừa tăng thêm thú vị cho khi trò chuyện.

Mặt bằng kiến trúc tầng 1
Sau khi bước qua 2 căn phòng khách và thờ bạn sẽ đến các khu vực sinh hoạt của gia đình bao gồm 2 phòng ngủ tiện nghi, một phòng ăn, 1 phòng bếp, 2 nhà vệ sinh và một sân gia công.
Hai phòng ngủ nằm phía bên trái khi bạn nhìn từ phòng khách, phòng ngủ được thiết kế đầy đủ tiện nghi để giờ phút nghỉ ngơi của gia đình luôn đươc trọn vẹn. Chính vì đề cao không gian nghỉ ngơi nên gia chủ không thiết kế vệ sinh khép kín mà thiết kế tận dụng khu vực cạnh hành lang.
Đối diện phòng ngủ số 2 là phòng ăn gia đình, tại đây có một cửa sổ lớn nhìn ra sân sau giúp bữa ăn của gia đình thêm phần sinh động và thông thoáng hơn. Bếp được ngăn cách với phòng ăn bằng một bức tường, có quạt thông gió ra ngoài để hạn chế tối đa ảnh hưởng đến khu vực xung quanh đặc biệt là phòng ngủ và phòng khách.
Một sân gia công đối diện với phòng bếp có vòi nước là nơi bà nội trợ trong gia đình có thể sơ chế các món ăn sống trước khi đưa vào khu vực bếp chế biến. Một phòng vệ sinh nữa được bố trí bên trong sân gia công phục vụ tối đa nhu cầu của gia đình khi sinh hoạt tại tầng 1. Bạn thích thiết kế tầng 1 căn biệt thự này chứ?
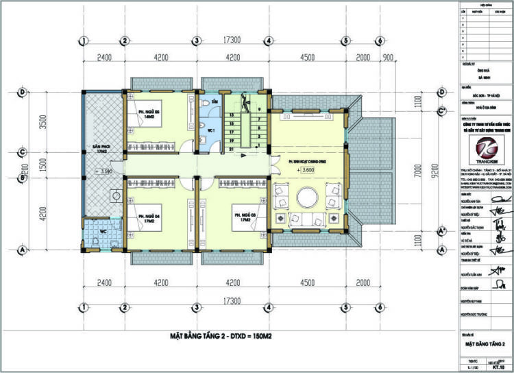
Mặt bằng thiết kế tầng 2
Bạn có thể lên tầng 2 theo trục giao thông cầu thang. Về cơ bản tầng 2 được thiết kế đồng trục với tầng 1. Phòng ăn ở tầng 1 được thiết kế thành một phòng ngủ tương ứng những phòng ngủ khác ở tầng 2. Phòng khách và thờ tầng 1 đã trở thành phòng sinh hoạt chung. Bố trí một tivi phục vụ cho phòng sinh hoạt chung. Bàn ghế ở phía đối diện giúp hạn chế ngồi tại khu vực đặt ban thờ phía dưới.

Mặt bằng kiến trúc tầng 2
Phòng bếp và sân gia công được thiết kế thành một sân chơi cho các thành viên trong gia đình. Vào những ngày trời mưa, gia đình không thể vui chơi ở sân thì khu vực sân chơi đến phòng sinh hoạt chung là không gian tuyệt vời thay thế.
Mặt bằng thiết kế tầng áp mái
Tầng áp mái được thiết kế bên trên bản trần tầng 2. Tại đây được bố trí hệ thống mái thái hiện đại. Tường được xây đồng trục với tường nhà phía dưới nhưng xây thu hồi cao đúng bằng các phần mái thái chéo biến thiên. Các khoảng không gian do phần mái tạo ra có thể thiết kế làm phòng kỹ thuật điện nước rất tiện lợi cho sinh hoạt của gia đình.

Mặt bằng tầng áp mái
Hình ảnh phối cảnh thiết kế của nhà biệt thự 2 tầng mái thái tại Sóc Sơn

Phối cảnh thiết kế biệt thự mái thái 2 tầng – Góc 1

Phối cảnh thiết kế biệt thự mái thái 2 tầng – Góc 2

Phối cảnh thiết kế biệt thự mái thái 2 tầng – Góc 3
Một số hình ảnh thực tế công trình

Biệt thự 2 tầng mái thái hiện đại – Hình ảnh thực tế 1

Biệt thự 2 tầng mái thái hiện đại – Hình ảnh thực tế 2

Biệt thự 2 tầng mái thái hiện đại – Hình ảnh thực tế 3

Biệt thự 2 tầng mái thái hiện đại – Hình ảnh thực tế 4

Biệt thự 2 tầng mái thái hiện đại – Hình ảnh thực tế 5
Chi phí
| Gói dịch vụ | Nội dung | SL | Đơn giá | Thành tiền |
| Thiết kế kiến trúc | Hồ sơ bao gồm:Kiến trúc, kết cấu, điện nước | 285 m2 | 125.000 | 35.625.000 Vnd |
| Thi công xây dựng | Gói thi công xây dựng trọn gói | 285 m2 | 6.000.000 | 1.710.000.000 Vnd |
Bạn thích mẫu thiết kế biệt thự 2 tầng mái thái phía trển chứ?
Chúng tôi hy vọng đã mang đến cho bạn một giải pháp cho không gian biệt thự tương lai của bạn. Chính vì vậy những thiết kế chúng tôi mang đến luôn xuất phát từ mong muốn lắng nghe và thấu hiểu gia chủ. Để xem thêm nhiều hơn những mẫu biệt thự như thế mời bạn tham khảo: Những mẫu thiết kế biệt thự 2 tầng đẹp và tiện nghi hoặc xem nhiều hơn tại:
Và nếu bạn cần thêm sự tư vấn từ những chuyên gia giàu kinh nghiệm, đừng ngần ngại, hãy gọi ngay cho chúng tôi theo số 0985 999 895 (Zalo) hay email Gửi tư vấn, hoặc đơn giản hơn bạn chỉ cần để lại yêu cầu kèm số điện thoại của bạn thông qua FB Chat của Trang Kim. Chúng tôi sẽ liên hệ lại bạn trong thời gian sớm nhất.
Chúc bạn sớm tìm được một không gian phù hợp cho căn biệt thự của mình.

