Trong chúng ta ai cũng muốn chọn cho mình một mảnh đất ở vị trí đắc địa, hình thức vuông vắn, hướng hợp với phong thủy kiến trúc để thiết kế xây dựng một căn nhà theo đúng ý tưởng của mình. Nhưng không phải ai cũng có được mảnh đất thuận lợi bởi có hàng trăm nghìn lý do khác nhau. Nhưng chính vì những điều đó mà thiết kế nhà trên đất hình tam giác luôn tạo một cảm hứng cho kiến trúc sư Trang Kim bởi ở đó có những bài toán khó với muôn vàn lời giải khác nhau đưa lại giá trị sáng tạo cho chủ nhà.
Mục lục
Thông tin về thiết kế biệt thự trên đất hình tam giác
- Diện tích sàn: 60(m2)
- Tổng diện xây dựng: 180(m2 )
- Chủ đầu tư: Cô Hoan
- Địa chỉ: Đường Ngô Xuân Quảng – TT Trâu Quỳ – Gia Lâm – Hà Nội
- Thiết kế: Công ty TNHH tư vấn thiết kế kiến trúc và xây dựng Trang Kim

Phương án bố trí công năng sử dụng
Mặt bằng tầng 1: Phòng khách, phòng bếp + ăn, cầu thang bộ, tiểu cảnh gầm cầu thang, wc.
Mặt bằng tầng 2: 02 phòng ngủ, wc, ban công, lô gia, cầu thang bộ + sảnh tầng.
Mặt bằng tầng 3: phòng thờ + kho, sân giặt, sân phơi + chơi.
Mặt bằng kiến trúc biệt thự trên đất hình tam giác
Trong thế đất hình tam giác thì việc xắp xếp, bố cục hình khối như thế nào cho phù hợp với công năng sử dụng, phù hợp với phong thủy và thẩm mỹ là điều cần phải nghiên cứu rất kỹ, để tìm ra một ý tưởng tốt nhất đem lại những giá trị vô hình cho chủ đầu tư. Hãy cùng kiến trúc Trang Kim đi tìm lời giải cho thiết kế biệt thự trên đất tam giác với diện tích 60m2 của cô Hoan tại Gia Lâm, Hà Nội để thấy được những nét tinh tế trong việc phân chia không gian công năng sử dụng cũng như việc xắp xếp hình khối trên phối cảnh của công trình.
Mặt bằng tầng 1
Tầng 1 được thiết kế với cửa ra vào 4 cánh, trong đó có 2 cánh mở thường xuyên và 2 cánh có công việc lớn mở ra cho tiện sử dụng. Không gian phòng khách là nơi gia đình ngồi quây quần bên nhau sau những giờ làm việc hay học tập căng thẳng nên kiến trúc sư muốn dành một hình vuông vắn để ưu tiên cho không gian này. Nột thất phòng khách và cầu thang bộ được thiết kế cạnh nhau tạo một khoảng trống cần thiết, hơn nữa với cửa sổ ở phòng khách được mở ra bên ngoài để lấy gió và ánh sáng nên khi ngồi bên trong luôn có sự thoải mái nhất định.
Một chút cây xanh được đưa vào nhà thông qua góc tiểu cảnh ở gầm cầu thang làm cho không gian trở lên sinh động hơn, dễ chịu hơn. Giải pháp bếp và wc được đưa vào trong góc nhọn của hình tam giác phần nào làm giảm đi những góc chết trong nhà giúp cho sinh hoạt cũng như thẩm mỹ được nâng lên.
Không gian ăn được thiết kế liên thông với bếp gần phòng khách đem lại cho gia đình những bữa ăn đầm ấm và thân thiện, hơn nữa nội thất phòng ăn và bếp được mở cửa sổ lớn ra bên ngoài mang lại một tầm view đẹp và đó là gía trị tuyệt vời của thiết kế nhà hình tam giác.

Mặt bằng kiến trúc tầng 1
Mặt bằng tầng 2
Tầng 2 được kiến trúc sư thiết kế với 2 phòng ngủ tương đối vuông vắn, bên trong một không gian nội thất hài hòa từ việc xắp xếp đồ đạc nội thất đến việc lấy sáng và thông khí.
WC lớn phục vụ nhu cầu sinh hoạt ở tầng này được kiến trúc sư thiết kế vuông vắn, chỗ nhọn của hình tam giác được bố trí làm hộp kỹ thuật, trồng cây xanh làm khoảng trống lấy gió và sáng cho nhà wc, chính vì thế nên nhà wc nhìn rất thẩm mỹ và bắt mắt không có điểm chết bên trong. Bên cạnh nhà wc là hai chiếc lô gia kết hợp với những khóm cây xanh được kiến trúc sư bố trí ngay bên cạnh sảnh tầng giúp mọi thành viên có thể ra ngồi thư giãn hóng mát .
Sảnh tầng được thiết kế vuông, tiết kiệm tối đa diện tích dành cho giao thông trong nhà nhưng vẫn đem đến sự tiện dụng nhất định trong sinh hoạt sử dụng.

Mặt bằng kiến trúc tầng 2
Mặt bằng tầng 3
Tầng 3 được thiết kế phòng thờ, phòng giặt + sân phơi…, Nội thất phòng thờ được thiết kế ở vị trí đẹp nhất của nhà tính theo phong thủy, hướng nhìn của ban thờ là hướng tọa cát hướng cát theo phong thủy tuổi chủ nhà nhằm đem đến những giá trị tâm linh tốt nhất cho gia chủ, chỗ góc nhọn bên trong phòng thờ được bố trí làm kho nhằm lưu giữ những đồ đạc ít dùng.
Phòng giặt và sân phơi được bố trí thiết kế theo một dây chuyền khép kín đem đến sự tiện dụng trong sử dụng của gia đình.
Trên tầng 3 này kiến trúc sư cũng bố trí những khoảng xanh bên cạnh lô gia để làm tôn lên giá trị kiến trúc và tạo cảnh quan đối với môi trường xung quanh.

Mặt bằng kiến trúc tầng 3
Mật đứng, mặt cắt thiết kế biệt thự trên đất tam giác

Mặt đứng chính kiến trúc

Mặt đứng bên kiến trúc

Mắt cắt A – A

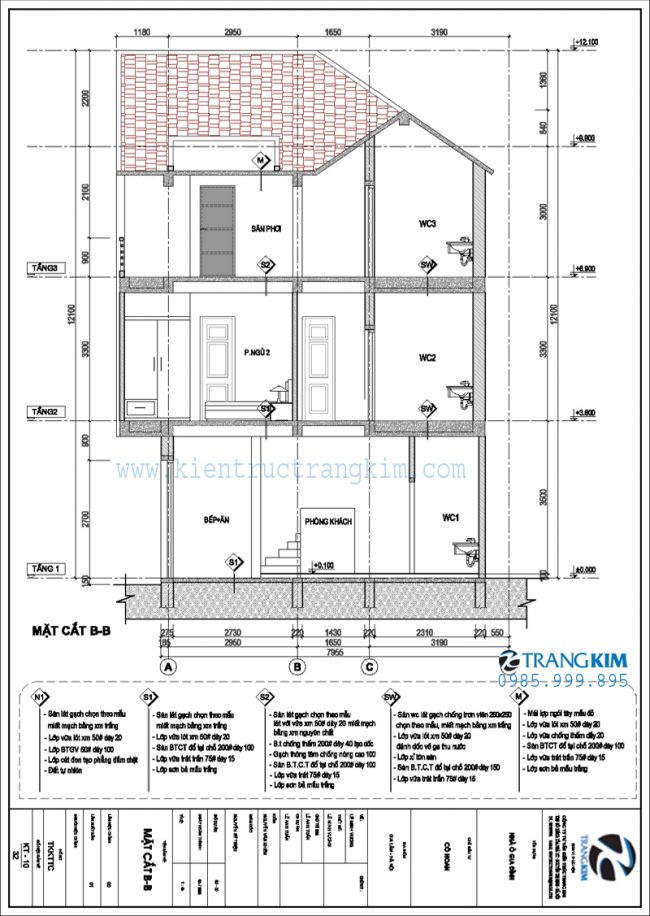
Mắt cắt B – B
Phối cảnh thiết kế biệt thự trên đất hình tam giác
Dưới góc nhìn phối cảnh có thể thấy kiến trúc biệt thự trên đất tam giác được kiến trúc sư bố trí giống như một thiết kế biệt thự hiện đại với mái ngói đỏ, các chi tiết kiến trúc đưa vào rất tinh tế làm cho người xem có phần bị mất đi cảm giác biệt thự trên thế đất hình tam giác.
Các cửa sổ được thiết kế rất khéo léo ở những vị trí không làm ảnh hưởng đến việc sử dụng nội thất bên trong mà còn làm tăng tính thẩm mỹ cho kiến trúc bên ngoài. Màu sắc chính sử dụng trong thiết kế là màu ghi sáng, những mảng gạch dùng để ốp tường cũng được thiết kế màu ghi xẫm cho phù hợp với mệnh theo phong thủy tuổi của chủ nhà.

Phối cảnh thiết kế kiến trúc trên đất tam giác – V1
Chi phí
| Gói dịch vụ | Nội dung | SL | Đơn giá | Thành tiền |
| Thiết kế kiến trúc | Hồ sơ bao gồm:Kiến trúc, kết cấu, điện nước | 180 m2 | 156.250 | 28.125.000 Vnd |
Căn biệt thự trên cung cấp cho bạn một giải pháp thiết kế trên mản đất hình tam giác. Bạn thấy cách xử lý của kiến trúc sư hợp lý chứ?
Các góc nhọn được xử lý tinh tế và linh hoạt chắc chắn sẽ mang đến một không gian sống tiện nghi và thú vị cho bạn. Chúng tôi tin rằng trong tương lai căn biệt thự như này sẽ được áp dụng rộng rãi để mang đến những tiện nghi cho không gian sống của bạn thêm ý nghĩa.
Bạn có thể tham khảo thêm các mẫu biệt thự 3 tầng tại: Mẫu thiết kế biệt thự 3 tầng đẹp, hiện đại hoặc tham khảo thêm những mẫu biệt thự đẹp nhất cùng với thiết kế chi tiết của Trang Kim:
Nếu bạn cần thêm sự tư vấn từ những chuyên gia giàu kinh nghiệm, đừng ngần ngại, hãy gọi ngay cho chúng tôi theo số 0985 999 895 (Zalo) hay email Gửi tư vấn, hoặc đơn giản hơn bạn chỉ cần để lại yêu cầu kèm số điện thoại của bạn thông qua FB Chat của Trang Kim. Chúng tôi sẽ liên hệ lại bạn trong thời gian sớm nhất.
Cảm ơn bạn, chúc bạn có ý tưởng cho ngôi nhà mơ ước của mình!

