Việc thiết kế nhà ống hình thang là một trong những dạng thiết kế có lẽ là dễ nhất và cũng là khó nhất. Dễ nhất vì ai cũng làm được không phân biệt thợ xây hay kiến trúc sư. Khó nhất ở chỗ trong thiết kế không có nhiều sự sáng tạo đột phá, không có sự mới mẻ. Chính vì vậy cho dù một công trình nhà ống nhỏ nhưng vẫn cần được nghiên cứu một cách nghiêm túc nhất để tạo ra một sản phẩm tốt bền vững với nhu cầu phát triển của thời đại.

Mục lục
Thông tin về thiết kế nhà ống hình thang
- Diện tích sàn : 90(m2)
- Tổng diện xây dựng: 360(m2 )
- Chủ đầu tư: Cô Hoàng Kim Miên.
- Địa chỉ : Đường Bưng Ông Thoản – Phường Phú Hữu – Quận 9 – Tp Hồ Chí Minh
- Đơn vị thiết kế : Công ty TNHH tư vấn thiết kế kiến trúc và xây dựng Trang Kim
Yêu cầu về công năng thiết kế các lầu
Mặt bằng tầng trệt: không gian kinh doanh, cầu thang bộ, thang máy, wc, kho, sảnh tầng.
Mặt bằng lầu 1: không gian văn phòng, cầu thang bộ, thang máy, wc, giếng trời.
Mặt bằng lầu 2: cầu thang bộ, thang máy, wc, giếng trời, phòng khách, bếp , không gian ăn, 02 phòng ngủ trong đó có 01 phòng ngủ có wc khép kín.
Mặt bằng lầu 3: cầu thang bộ, thang máy, sân phơi, giếng trời, phong thờ, phòng ngủ lớn có wc khép kín, sân chơi, không gian ngồi thư giãn.
Mặt bằng thiết kế nhà ống trên đất hình thang
Do đặc điểm của mảnh đất này là thế đất hình thang nở hậu nên sau khi nghiên cứu kỹ về yêu cầu thiết kế cộng với sự tư vấn của kiến trúc sư thì phương án bố trí công năng được đưa ra như sau.
Mặt bằng tầng trệt
Ở tầng trệt với hệ thống giao thông chính là thang bộ và thang máy được đẩy về phía cuối của nhà cùng với nhà vệ sinh và kho. Với hệ thống giao thông không bị chồng chéo, không làm ảnh hưởng đến các lầu ở phía trên đem lại sự riêng tư cần thiết cho người ở trong đó.
Những góc nhọn và đường chéo được tận dụng vào nhà wc và kho phần nào khỏa lấp được những nhược điểm cơ bản của kiến trúc nhà hình thang đem lại một không gian bắt mắt và hài hòa với xung quanh.
Diện tích còn lại tương đối vuông vắn với hai mặt tiền là điều kiện lý tưởng để phục vụ nhu cầu kinh doanh của gia chủ hoặc cho thuê để làm kinh doanh. Không gian kinh doanh với cửa trong kính ngoài cuốn nên rất đảm bảo về an ninh cũng như thẩm mỹ bên ngoài đem lại một giá trị tích cực trong việc buôn bán cũng như hình ảnh đẹp trong mắt người qua đường.

Mặt bằng tầng trệt
Mặt bằng lầu 1
Lầu 1 được thiết kế làm văn phòng cho thuê hoặc làm công ty của gia đình, chính vì vậy nên kiến trúc sư đã thiết kế và tính toán rất kỹ mọi phương án có thể xảy ra để tiện cho việc xắp xếp linh hoạt một văn phòng công ty mà không có sự xáo trộn nhiều về không gian.
Về cơ bản thì một thiết kế văn phòng làm việc cần có là một không gian làm việc thoáng, sáng mang đến sự sáng tạo cho các nhân viên trong đó nên kiến trúc sư đã thiết kế mở với những không gian xanh mát mắt bên những ô kính lớn.
Một nhà wc bên giếng trời ở góc méo đủ cho một sinh hoạt cơ bản của văn phòng, giếng trời lấy ánh sáng và thông khí cho thang bộ giúp mọi người đi lại cảm thấy dễ dàng và thoải mái nhất.

Mặt bằng lầu 1
Mặt bằng lầu 2
Lầu 2 được thiết kế làm không gian sinh hoạt của gia đình với không gian khách, bếp và ăn được thiết kế liên thông tạo cảm giác rộng và hiện đại. Bếp nấu được thiết kế theo dạng hình chữ I với một dây chuyền gia công bếp khép kín từ lúc đi chợ về cho đến lúc hoàn thiện một món ăn và đưa ra bàn ăn, tất cả được bố trí khoa học và linh hoạt nhất đảm bảo cả về thẩm mỹ lẫn phong thủy hướng bếp nấu.Bàn ăn được bố trí với 6 người ăn cùng lúc đem lại những bữa cơm ấm cúng cho các thành viên trong gia đình.
Trên lầu 2 này kiến trúc sư đã thiết kế hai phòng ngủ trong đó có một phòng ngủ lớn có wc khép kín bên trong để tiện cho việc sinh hoạt, nội thất phòng ngủ lớn được thiết kế với tủ quần áo lớn được đặt sát tường cạnh nhà wc, bàn làm việc kết hợp bàn trang điểm được bố trí ở sát cửa mặt tiền và mặt hông đem lại ánh sáng tự nhiên nhiều nhất có thể. Nội thất phòng ngủ con với một chiếc giường 1.6×2.0m kết hợp tủ quần áo nhỏ được bố trí ngay bên đầu giường, những chiếc hộc được thiết kế ở đầu giường phần nào che được kết cấu của cột chịu lực chính trong phòng và trang trí cho phòng trở lên thẩm mỹ hơn.

Mặt bằng lầu 2
Mặt bằng lầu 3
Lầu 3 được thiết kế với một phòng thờ được đặt ở vị trí đẹp nhất trên tổng mặt bằng theo phong thủy bát trạch lẫn cửu cung. Nội thất phòng thờ với hướng tọa cát hướng cát đem lại sinh khí tốt cho gia chủ giúp gia chủ cảm thấy thoải mái về tâm linh đảm bảo một cuộc sống hạnh phúc bên thiết kế nhà đẹp.
Sân chơi đồng thời cũng là sân hóa vàng mỗi khi thắp hương ngày tuần tiết của tháng, sân chơi với những chậu cây xanh trang trí tôn lên vẻ đẹp cho nội thất phòng thờ đồng thời làm tôn cảnh quan cho chính những công trình kiến trúc xung quanh.
Một phòng ngủ lớn rộng là điều kiện lý tưởng cho những ai ở trên đây bởi nội thất và sự gần gũi với thiên nhiên bên ngoài. Sân phơi nhỏ được thiết kế ở một góc nhỏ phía trên nhà wc lầu 2 với ánh sáng trục tiếp và cả giếng trời giúp cho việc phơi đồ được đảm bảo nhất.
Một góc thư giãn nhỏ được thiết kế ngay bên cạnh phòng thờ trước cửa thang máy là khoảng không gian tĩnh lặng để có thể thưởng thức một tách trà hay bên ly cà phê để tư duy cho một dự án mới trong tương lai.

Mặt bằng lầu 3
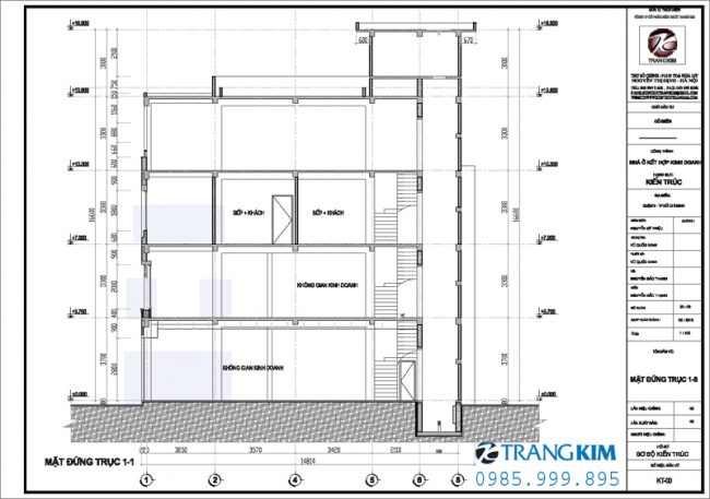
Mặt đứng, mặt cắt thiết kế nhà ống trên đất hình thang

Mặt đứng trục 1 – 4

Mặt đứng trục A – B
Mặt đứng trục 1 – 1
Phối cảnh thiết kế nhà ống hình thang
Dựa vào công năng sử dụng các tầng cộng với hiện trạng kiến trúc xung quanh kiến trúc sư Trang Kim đã đưa ra mô hình thiết kế kiến trúc nhà ống trên đất hình thang nở hậu với một ngôn ngữ thiết kế hiện đại mang hơi thở của thời đại mới.
Với công năng sử dụng ở tầng trệt và lầu 1 dành cho kinh doanh và văn phòng cho thuê nên kiến trúc sư đã đưa ra một thiết kế mở, hiện đại phù hợp với nhu cầu thực tế, những mảng kính lớn, những cột trang trí được thiết kế với một tỷ lệ đẹp trong kiến trúc phần nào làm nên vẻ đẹp hài hòa, hệ lam chắn nắng trên mặt tiền ở lầu 1 và hệ cây xanh phía chân của công trình giúp tạo nên dáng vẻ của một không gian văn phòng làm việc sáng tạo.
Ngoài những mảng tường đặc và rỗng được tính toán thì kiến trúc sư đã sử dụng hệ gạch block đem đến một sự khách biệt nho nhỏ về giải pháp kiến trúc mặt tiền nhà ống, tạo sự thông thoáng cho những không gian phụ trợ.
Phòng kỹ thuật thang máy được thiết kế nhô cao hơn đảm bảo về kỹ thuật của buồng máy ạo sự nhấp nho trên mặt đứng của thiết kế kiến trúc. Tất cả các vị trí trên phối cảnh đều rất khớp khít và tuân thủ đúng với công năng sử dụng bên trong , đảm bảo cho việc kê đồ nội thất mà không ảnh hưởng đến thẩm mỹ kiến trúc bên ngoài và ngược lại.

Phối cảnh thiết kế kiến trúc nhà ống hình thang – V1

Phối cảnh thiết kế kiến trúc nhà ống hình thang – V2
Bạn có thực sự yêu những nét đẹp của căn nhà ống này?
Với những thiết kế rất riêng tôi tin nó là một phần không thể thiếu trong bộ sưu tập những căn nhà ống. Và chúng tôi hy vọng nó giúp ích cho bạn trên con đường đi tìm những thiết kế cho căn nhà ống của mình.
Bạn cùng chúng tôi xem thêm một số mẫu nhà ống đẹp hút hồn và những thiết kế chi tiết của nó tại:
Và nếu bạn cần thêm sự tư vấn từ những chuyên gia giàu kinh nghiệm, đừng ngần ngại, hãy gọi ngay cho chúng tôi theo số 0985 999 895 (Zalo) hay email Gửi tư vấn, hoặc đơn giản hơn bạn chỉ cần để lại yêu cầu kèm số điện thoại của bạn thông qua FB Chat của Trang Kim. Chúng tôi sẽ liên hệ lại bạn trong thời gian sớm nhất.
Chúc bạn sớm tìm được một không gian đẹp cho mình nhé.
Chi phí
| Gói dịch vụ | Nội dung | SL | Đơn giá | Thành tiền |
| Thiết kế kiến trúc | Hồ sơ bao gồm:Kiến trúc, kết cấu, điện nước | 360 m2 | 120.000 | 43.200.000 Vnd |

