Mục lục
Thông tin cơ bản công trình
Thông tin về thiết kế biệt thự 2 tầng mái Nhật tại Hoàng Mai, Nghệ An như sau:
- Diện tích đất 13.8 x 18m = 250(m2 )
- Diện tích sàn tầng 1: 125 (m2)
- Diện tích sàn tầng 2: 130(m2)
- Tổng diện xây dựng: 255(m2)
- Chủ đầu tư: Anh Thắng
- Địa chỉ công trình: Thị xã Hoàng Mai, tỉnh Nghệ An.
- Đơn vị thiết kế: Công ty TNHH tư vấn thiết kế kiến trúc và xây dựng Trang Kim
Công năng sử dụng các tầng nhà
- Mặt bằng tầng 1: Sảnh chính 15m2, phòng khách 26 m2, cầu thang bộ 12m2, Gara ô tô 20m2, không gian bếp 8.5m2, không gian ăn 16m2, wc 6m2, phòng ngủ 1- 17 m2, sân vườn kết hợp để xe ô tô ngoài trời.
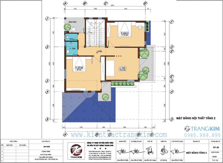
- Mặt bằng tầng 2: cầu thang bộ 12m2 + sảnh tầng 5m2, phòng ngủ 3 – 17.5m2, phòng ngủ bố mẹ – 25m2, phòng thờ – 14.5m2, sân phơi 5m2, phòng wc 5m2.

Hình ảnh phối cảnh công trình
☛ Xem thêm: 35+ mẫu thiết kế biệt thự 2 tầng đẹp, đầy đủ tiện nghi
Mặt bằng thiết kế biệt thự 2 tầng mái nhật
Mặt bằng định vị công trình

Mặt bằng định vị kiến trúc công trình
Mặt bằng thiết kế tầng 1

Mặt bằng nội thất tầng 1
Mặt bằng thiết kế tầng 2

Mặt bằng nội thất tầng 2
Mặt bằng kiến trúc mái

Mặt bằng kiến trúc mái
Hình ảnh phối cảnh thiết kế kiến trúc biệt thự 2 tầng mái Nhật

Phối cảnh kiến trúc biệt thự 2 tầng mái Nhật – V1

Phối cảnh kiến trúc biệt thự 2 tầng mái Nhật – V2

Phối cảnh kiến trúc biệt thự 2 tầng mái Nhật – V3
Hình ảnh nội thất biệt thự 2 tầng mái Nhật
Nội thất phòng khách + bếp

Nội thất phòng khách + bếp – Góc 1

Nội thất phòng khách + bếp – Góc 2

Nội thất phòng khách + bếp – Góc 3

Nội thất phòng khách + bếp – Góc 4

Nội thất phòng khách + bếp – Góc 5

Nội thất phòng khách + bếp – Góc 6

Nội thất phòng khách + bếp – Góc 7

Nội thất phòng khách + bếp – Góc 8
Nội thất phòng ngủ bố mẹ

Hình ảnh nội thất phòng ngủ bố mẹ – Góc 1

Hình ảnh nội thất phòng ngủ bố mẹ – Góc 2

Hình ảnh nội thất phòng ngủ bố mẹ – Góc 3

Hình ảnh nội thất phòng ngủ bố mẹ – Góc 4
Phòng ngủ tầng 1

Nội thất phòng ngủ tầng 1 – Góc 1

Nội thất phòng ngủ tầng 1 – Góc 2

Nội thất phòng ngủ tầng 1 – Góc 3
Phòng ngủ nhỏ tầng 2

Nội thất phòng ngủ tầng nhỏ tầng 2 – Góc 1

Nội thất phòng ngủ tầng nhỏ tầng 2 – Góc 2

Nội thất phòng ngủ tầng nhỏ tầng 2 – Góc 3
Chi phí
| Gói dịch vụ | Nội dung | SL | Đơn giá | Thành tiền |
| Thiết kế kiến trúc | Hồ sơ bao gồm:Kiến trúc, kết cấu, điện nước | 255 m2 | 125.000 | 31.875.000 Vnd |
Trên đây là mẫu thiết kế biệt thự 2 tâng, 3 phòng ngủ mái nhật hiện đại mà Trang Kim đã thực hiện cho anh Thắng. Để xem thêm các mẫu thiết kế biệt thự hiện đại bạn có thể “BẤM XEM TẠI ĐÂY”
☛ Hoặc tham khảo thêm: 100+ mẫu thiết kế kiến trúc biệt thự đẹp, đầy đủ mặt bằng
Nếu bạn cần thêm sự tư vấn từ những chuyên gia giàu kinh nghiệm, đừng ngần ngại, hãy gọi ngay cho chúng tôi theo số 0985 999 895 (Zalo) hay email Gửi tư vấn, hoặc đơn giản hơn bạn chỉ cần để lại yêu cầu kèm số điện thoại của bạn thông qua FB Chat của Trang Kim. Chúng tôi sẽ liên hệ lại bạn trong thời gian sớm nhất.
Cảm ơn và chúc bạn sớm có được cho mình một không gian sống thật lý tưởng!

