
Mục lục
Thông tin cơ bản về công trình
Thông tin về Thiết kế nhà ống 6 tầng 1 tum 1 mặt thoáng Tân Cổ Điển làm văn phòng cho thuê kết hợp ở gia đình tại thôn Yên Lũng, xã An Khánh, huyện Hoài Đức, tp Hà Nội.
- Diện tích sàn tầng 1: 63.7(m2)
- Diện tích sàn tầng 2,3: 68.3m2)
- Diện tích sàn tầng 4.5,6: 68(m2)
- Diện tích sàn tầng tum: 39(m2)
- Tổng diện xây dựng: 443.3 (m2)
- Chủ đầu tư: ông Nguyễn Đình Tấn
- Địa chỉ công trình: thôn Yên Lũng, xã An Khánh, huyện Hoài Đức, tp Hà Nội
- Đơn vị thiết kế: Công ty tư vấn Thiết Kế Kiến trúc và Xây Dựng Trang Kim
Công năng sử dụng từng tầng nhà
Công năng sử dụng các tầng như sau:
- Mặt BằngTầng 1 bao gồm không gian cho thuê kinh doanh 45m2, cầu thang bộ, thang máy, wc.
- Mặt BằngTầng 2,3 bao gồm cầu thang bộ, thang máy + sảnh tầng, giếng trời 1.2m2, không gian cho thuê văn phòng 43m2, wc 2.8m2, ban công 2m2.
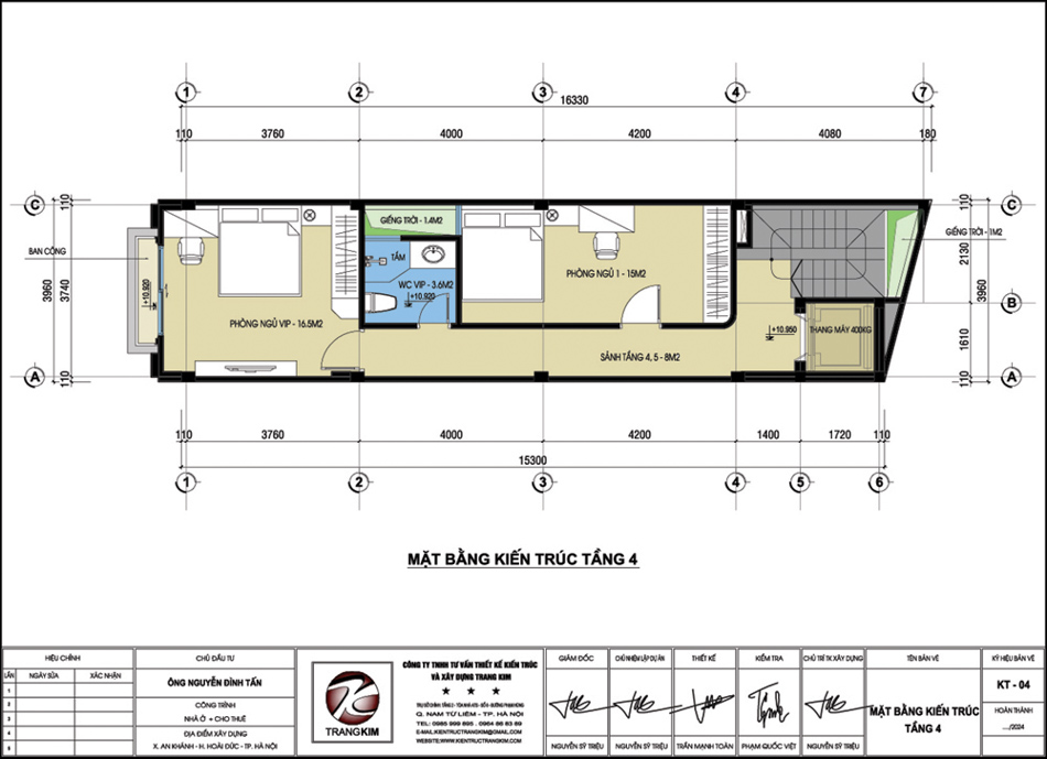
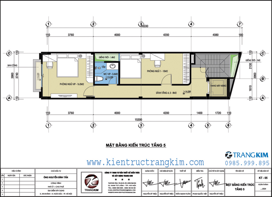
- Mặt BằngTầng 4,5 bao gồm cầu thang bộ, thang máy + sảnh tầng,giếng trời 1.2m2, phòng ngủ vip – 16m2 + ban công 2m2, phòng ngủ 01 – 15m2, wc – 3.6m2 + giếng trời 1m2.
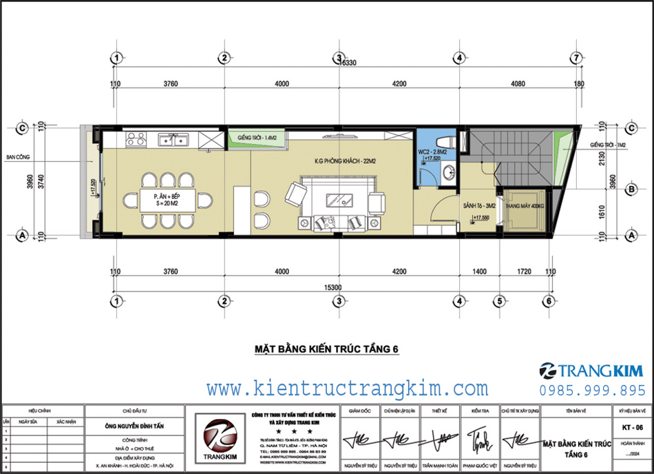
- Mặt BằngTầng 6 bao gồm cầu thang bộ, thang máy + sảnh tầng,giếng trời 1.2m2, không gian khách + bếp ăn, giếng trời 43m2, wc – 2.8m2, ban công,
- Mặt BằngTầng tum bao gồm cầu thang bộ, thang máy + sảnh tầng,giếng trời 1.2m2, phòng thờ 10.5m2, sân chơi + phơi.- 22m2.

Hình ảnh phối cảnh căn nhà theo mong muốn của gia chủ
☛ Tham khảo thêm: Top 50 mẫu nhàcho thuê – vừa ở vừa cho thuê
Mặt bằng thiết kế nhà ống 6 tầng 1 tum kết hợp cho thuê văn phòng
Mặt bằng thiết kế tầng 1

Mặt bằng kiến trúc tầng 1 – cho thuê kinh doanh
Mặt bằng thiết kế tầng 2

Mặt bằng kiến trúc tầng 2 – cho thuê văn phòng
Mặt bằng thiết kế tầng 3

Mặt bằng kiến trúc tầng 3 – cho thuê văn phòng
Mặt bằng thiết kế tầng 4

Mặt bằng kiến trúc tầng 4 – nhà ở gia đình
Mặt bằng thiết kế tầng 5

Mặt bằng kiến trúc tầng 5 – nhà ở gia đình
Mặt bằng thiết kế tầng 6

Mặt bằng kiến trúc tầng 6 – nhà ở gia đình
Mặt bằng thiết kế tầng tum

Mặt bằng kiến trúc tầng tum – nhà ở gia đình
Hình ảnh phối cảnh kiến trúc công trình
Hình ảnh phối cảnh Thiết kế nhà ống 6 tầng 1 tum 1 mặt thoáng Tân Cổ Điển làm văn phòng cho thuê kết hợp ở gia đình tại xã An Khánh, huyện Hoài Đức, tp Hà Nội.

Phối cảnh thiết kế nhà 6 tầng 1 tum 1 mặt thoáng – Góc 1

Phối cảnh thiết kế nhà 6 tầng 1 tum 1 mặt thoáng – Góc 2

Phối cảnh thiết kế nhà 6 tầng 1 tum 1 mặt thoáng – Góc 3

Phối cảnh thiết kế nhà 6 tầng 1 tum 1 mặt thoáng – Góc 4

Phối cảnh thiết kế nhà 6 tầng 1 tum 1 mặt thoáng – Góc 5
Hình ảnh nhà ống quá trình thi công thực tế

Hình ảnh công trình trong quá trình thi công – Góc 1

Hình ảnh công trình trong quá trình thi công – Góc 2

Hình ảnh công trình trong quá trình thi công – Góc 3

Hình ảnh công trình trong quá trình thi công – Góc 4

Hình ảnh công trình trong quá trình thi công – Góc 5

Hình ảnh công trình trong quá trình thi công – Góc 6

Hình ảnh công trình trong quá trình thi công – Góc 7

Hình ảnh công trình trong quá trình thi công – Góc 8
Trên đây là mẫu thiết kế nhà nhà ống 6 tầng 1 tum cho nhu cầu cho thuê kinh doanh hiệu quả. Trang Kim hy vọng đã gửi đến một giải pháp công trình hữu dụng cho bạn. Nếu bạn muốn tham khảo thêm các mẫu nhà tương tự, mời bạn tham khảo link:
Nếu bạn cần thêm sự tư vấn từ những chuyên gia giàu kinh nghiệm, đừng ngần ngại, hãy gọi ngay cho chúng tôi theo số 0985 999 895 (Zalo) hay email Gửi tư vấn
Chúc bạn sớm tìm được mẫu nhà lô ưng ý !

