Mục lục
Thông tin cơ bản về công trình
Thông tin về Thiết kế biệt thự đẹp 2 tầng mái Nhật Tân Cổ Điển với diện tích sàn 160m2 tại Dân Tiến, huyện Khoái Châu, tỉnh Hưng Yên.
Diện tích đất 15m x17m = 255m2 với 1 mặt thoáng:
- Diện tích sàn tầng 1: 158m2)
- Diện tích sàn tầng 2: 147(m2)
- Tổng diện xây dựng: 305 (m2)
- Chủ đầu tư: ông Việt
- Địa chỉ công trình: Dân Tiến, huyện Khoái Châu, tỉnh Hưng Yên
- Đơn vị thiết kế: Công ty tư vấn Thiết Kế Kiến trúc và Xây Dựng Trang Kim
Công năng sử dụng từng tầng nhà
Công năng sử dụng các tầng như sau:
Mặt Bằng Tầng 1 bao gồm cổng hang rào sân vườn + sân xe máy ô tô 48m2, gia công thô 17m2, tam cấp + tiền sảnh, hồ cá Koi + tiểu cảnh cây xanh, phòng khách 27.5m2, không gian thờ 11.5m2, cầu thang bộ, phòng ngủ ông bà – 14.5m + wc 4m2, sảnh phụ 5m2, Phòng bếp + ăn 29m2, phòng wc 2m2.
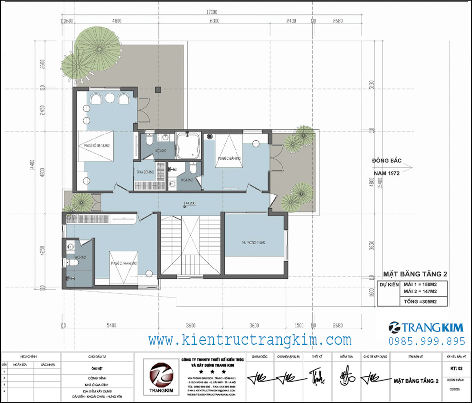
Mặt Bằng Tầng 2 bao gồm thang bộ + sảnh tầng, không gian thư phòng 11.5m2, Phòng ngủ bố mẹ – 18.5m2 + thay đồ 3m2 + wc khép kín 5m2 + sân chơi cây xanh, Phòng ngủ con trai – 16.5m2 + wc khép kín 4m2, phòng ngủ con gái – 12m2+ wc khép kín 3m2 + sân chơi cây xanh.

Hình ảnh phối cảnh căn nhà theo mong muốn của gia chủ
☛ Tham khảo thêm: 80+ mẫu thiết kế biệt thự tân cổ điển đẹp, đầy đủ mặt bằng
Mặt bằng thiết kế biệt thự 2 tầng mái Nhật Tân Cổ Điển
Mặt bằng thiết kế tầng 1

Mặt bằng nội thất tầng 1
Mặt bằng thiết kế tầng 2

Mặt bằng nội thất tầng 2
Hình ảnh phối cảnh kiến trúc công trình
Hình ảnh phối cảnh Thiết kế biệt thự đẹp 2 tầng mái Nhật Tân Cổ Điển với diện tích sàn 160m2 tại Dân Tiến, huyện Khoái Châu, tỉnh Hưng Yên.

Phối cảnh thiết kế biệt thự 2 tầng mái Nhật Tân Cổ Điển – Góc 1

Phối cảnh thiết kế biệt thự 2 tầng mái Nhật Tân Cổ Điển – Góc 2

Phối cảnh thiết kế biệt thự 2 tầng mái Nhật Tân Cổ Điển – Góc 3

Phối cảnh thiết kế biệt thự 2 tầng mái Nhật Tân Cổ Điển – Góc 4

Phối cảnh thiết kế biệt thự 2 tầng mái Nhật Tân Cổ Điển – Góc 5
Chi Phí

Trên đây là mẫu thiết kế biệt thự 2 tầng tân cổ điển đẳng cấp. Với sản phẩm lần này, chúng tôi hi vọng đã mang đến giải pháp xây dựng biệt thự tối ưu cho bạn
☛ Tham khảo thêm: 101+ mẫu biệt thự đẹp, đầy đủ mặt bằng
Nếu bạn cần thêm sự tư vấn từ nhưng chuyên gia giàu kinh nghiệm, đừng ngần ngại, hãy gọi ngay cho chúng tôi theo số 0985 999 895 (Zalo) hay email Gửi tư vấn, hoặc đơn giản hơn bạn chỉ cần để lại yêu cầu kèm số điện thoại của bạn thông qua FB Chat của Trang Kim. Chúng tôi sẽ liên hệ lại bạn trong thời gian sớm nhất.
Chúc bạn sớm có được cho mình một không gian sống như ý!

