Mục lục
Thông tin cơ bản về công trình
Thông tin về Thiết kế biệt thự 2 tầng đẹp mái Nhật hiện đại trắng sáng trên đất hình thang tại xã Tân Châu, huyện Khoái Châu, tỉnh Hưng Yên.
- Diện tích sàn tầng 1: 110m2)
- Diện tích sàn tầng 2: 105(m2)
- Tổng diện xây dựng: 215 (m2)
- Chủ đầu tư: Em Công
- Địa chỉ công trình: xã Tân Châu, huyện Khoái Châu, tỉnh Hưng Yên
- Đơn vị thiết kế: Công ty tư vấn Thiết Kế Kiến trúc và Xây Dựng Trang Kim

Hình ảnh phối cảnh căn nhà theo mong muốn của gia chủ
☛ Tham khảo thêm: Những mẫu thiết kế biệt thự 2 tầng đẹp, đầy đủ tiện nghi
Công năng sử dụng từng tầng nhà
Công năng sử dụng các tầng như sau:
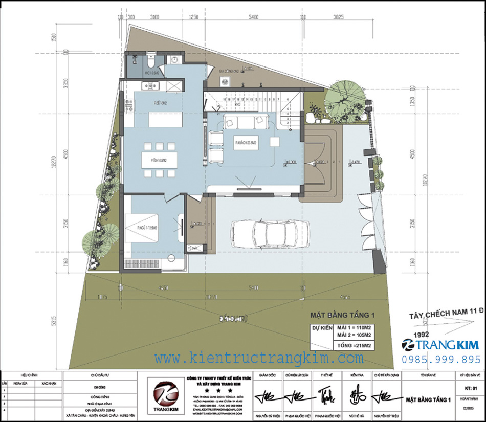
Mặt Bằng kiến trúc Tầng 1 bao gồm không gian cổng hàng rào, sân trước để ô tô, xe máy, tam cấp + sảnh chính 8m2, phòng khách 23.5m2, cầu thang bộ, không gian ăn 16.5m2, bếp nấu 8m2, phòng ngủ 01 – 13.5m2, phòng wc 2.5m2 có lavabo bên ngoài, lối đi ra sân gia công 8m2.
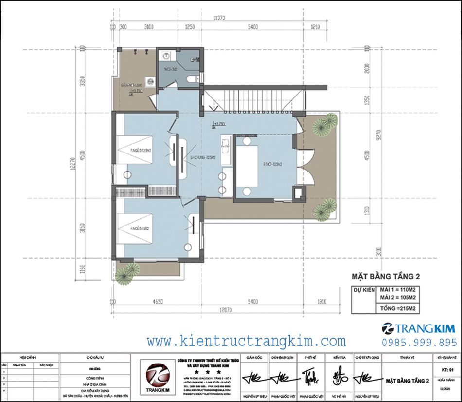
Mặt Bằng kiến trúc Tầng 2 bao gồm thang bộ + sảnh tầng, không gian sinh hoạt chung – 12.5m2, phòng thờ gia tiên 12.5m2, Phòng ngủ 02 – 12.5m2, phòng ngủ 03 – 15m2 + lô gia cây xanh, sân giặt + phơi 6.5m2, wc 4m2.
Mặt bằng thiết kế biệt thự 2 tầng mái thái hiện đại
Mặt bằng thiết kế tầng 1

Mặt bằng nội thất tầng 1
Mặt bằng thiết kế tầng 2

Mặt bằng nội thất tầng 2
Hình ảnh phối cảnh kiến trúc công trình
Hình ảnh phối cảnh Thiết kế biệt thự 2 tầng đẹp mái Nhật hiện đại trắng sáng trên đất hình thang tại xã Tân Châu, huyện Khoái Châu, tỉnh Hưng Yên.

Phối cảnh thiết kế biệt thự 2 tầng mái Nhật hiện đại – Góc 1

Phối cảnh thiết kế biệt thự 2 tầng mái Nhật hiện đại – Góc 2

Phối cảnh thiết kế biệt thự 2 tầng mái Nhật hiện đại – Góc 3

Phối cảnh thiết kế biệt thự 2 tầng mái Nhật hiện đại – Góc 4

Phối cảnh thiết kế biệt thự 2 tầng mái Nhật hiện đại – Góc 5

Phối cảnh thiết kế biệt thự 2 tầng mái Nhật hiện đại – Góc 6

Phối cảnh thiết kế biệt thự 2 tầng mái Nhật hiện đại – Góc 7

Phối cảnh thiết kế biệt thự 2 tầng mái Nhật hiện đại – Góc 8
Chi phí
| Gói dịch vụ | Nội dung | SL | Đơn giá | Thành tiền | 
| Thiết kế kiến trúc | Hồ sơ bao gồm:Kiến trúc, kết cấu, điện nước | 215 m2 | 125.000 | 26.875.000 Vnd | 
Trên đây là mẫu thiết kế biệt thự 2 tầng hiện đại mái Nhật mà Trang Kim đã thực hiện. Để xem thêm các mẫu thiết kế biệt thự hiện đại bạn có thể “BẤM XEM TẠI ĐÂY”
☛ Hoặc tham khảo thêm: Tổng hợp thiết kế biệt thự đẹp, đầy đủ mặt bằng
Nếu bạn cần thêm tư vấn từ những chuyên gia giàu kinh nghiệm, đừng ngần ngại, hãy gọi ngay cho chúng tôi theo số 0985 999 895 (Zalo) hay email Gửi tư vấn, hoặc đơn giản hơn bạn chỉ cần để lại yêu cầu kèm số điện thoại của bạn thông qua FB Chat của Trang Kim. Chúng tôi sẽ liên hệ lại bạn trong thời gian sớm nhất.
Cảm ơn và chúc bạn sớm có được cho mình một không gian sống thật lý tưởng!

 
  
  
  
  
  
 