
Mục lục
Thông tin cơ bản về công trình
Thông tin về Thiết kế biệt thự 2 tầng đẹp mái Nhật tân cổ điển trắng sáng, sang trọng cuốn hút với kích thước 10m x 20m trên diện tích đất 20mx50m tại xã Tân Dân, huyện Khoái Châu, tỉnh Hưng Yên:
Diện tích đất 10m x 20m = 276m2 với 3 mặt thoáng:
- Diện tích sàn tầng 1 : 200m2)
- Diện tích sàn tầng 2: 150(m2)
- Tổng diện xây dựng: 350 (m2)
- Chủ đầu tư: Anh Hoàng
- Địa chỉ công trình : xã Tân Dân, huyện Khoái Châu, tỉnh Hưng Yên
- Đơn vị thiết kế : Công ty tư vấn Thiết Kế Kiến trúc và Xây Dựng Trang Kim
Công năng sử dụng từng tầng nhà
Công năng sử dụng các tầng như sau:
Mặt Bằng kiến trúc Tầng 1 Nhà Chính :bao gồm không gian cổng hàng rào, sân trước để ô tô, xe máy, tam cấp + sảnh chính + sảnh phụ, phòng khách 26m2, không gian thờ 12.5m2, không gian ăn 21m2 + bếp nấu 9m2, cầu thang bộ, phòng ngủ 01 – 21m2, phòng wc 3.5m2, lối đi ra sân phía sau.
Nhà Phụ:bao gồm phòng trưng bày 22m2, phòng khách 19,6m2, phòng ngủ khách 12.5m2 + wc khép kín 5m2.
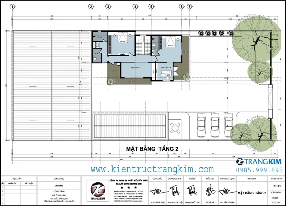
Mặt Bằng kiến trúc Tầng 2 bao gồm thang bộ + sảnh tầng, Phòng ngủ 02 – 21m2, phòng ngủ 03 – 21m2 + phòng làm việc 10.5m2 + lô gia cây xanh rộng thoáng mát, phòng thể dục 21m2, sân giặt + phơi 21m2, wc 4m2 + tắm 4.5m2 .

Hình ảnh phối cảnh căn nhà theo mong muốn của gia chủ
☛ Tham khảo thêm: 70+ thiết kế kiến trúc biệt thự đẹp – đầy đủ mặt bằng
Mặt bằng tthiết kế biệt thự 2 tầng đẹp mái Nhật tân cổ điển
Mặt bằng thiết kế tầng 1

Mặt bằng nội thất tầng 1
Mặt bằng thiết kế tầng 2

Mặt bằng nội thất tầng 2
Hình ảnh phối cảnh kiến trúc công trình
Thiết kế biệt thự 2 tầng đẹp mái Nhật tân cổ điển trắng sáng, sang trọng cuốn hút với kích thước 10m x 20m trên diện tích đất 20mx50m tại xã Tân Dân, huyện Khoái Châu, tỉnh Hưng Yên:

Phối cảnh kiến trúc biệt thự 2 tầng mái Nhật – Góc 1

Phối cảnh kiến trúc biệt thự 2 tầng mái Nhật – Góc 2

Phối cảnh kiến trúc biệt thự 2 tầng mái Nhật – Góc 3

Phối cảnh kiến trúc biệt thự 2 tầng mái Nhật – Góc 4

Phối cảnh kiến trúc biệt thự 2 tầng mái Nhật – Góc 5

Phối cảnh kiến trúc biệt thự 2 tầng mái Nhật – Góc 6

Phối cảnh kiến trúc biệt thự 2 tầng mái Nhật – Góc 6

Phối cảnh kiến trúc biệt thự 2 tầng mái Nhật – Góc 7

Phối cảnh kiến trúc biệt thự 2 tầng mái Nhật – Góc 8

Phối cảnh kiến trúc biệt thự 2 tầng mái Nhật – Góc 9

Phối cảnh kiến trúc biệt thự 2 tầng mái Nhật – Góc 10

Phối cảnh kiến trúc biệt thự 2 tầng mái Nhật – Góc 11
Chi phí
| Gói dịch vụ | Nội dung | SL | Đơn giá | Thành tiền |
| Thiết kế kiến trúc | Hồ sơ bao gồm:Kiến trúc, kết cấu, điện nước | 350 m2 | 125.000 | 43.750.000 Vnd |
Hy vọng mẫu thiết kế này đã gửi đến bạn một giải pháp kiến tạo cho ngôi nhà tương lai của mình.
☛ Tham khảo đầy đủ: 100+ thiết kế biệt thự đẹp và mới nhất của Trang Kim
Và nếu bạn cần thêm sự tư vấn từ những chuyên gia giàu kinh nghiệm, đừng ngần ngại, hãy gọi ngay cho chúng tôi theo số 0985 999 895 (Zalo) hay email Gửi tư vấn, hoặc đơn giản hơn bạn chỉ cần để lại yêu cầu kèm số điện thoại của bạn thông qua FB Chat của Trang Kim. Chúng tôi sẽ liên hệ lại bạn trong thời gian sớm nhất.
Chúc bạn sớm chọn được mẫu biệt thự phù hợp!

