
Mục lục
Thông tin cơ bản về công trình
Thông tin về Thiết kế chung cư mini cho thuê mặt tiền 5m có tầng bán hầm kết hợp ở gia đình tại xã Vân Canh, huyện Hoài Đức, tp Hà Nội.
Diện tích đất: 5m x 16m = 198m2 với 2 mặt thoáng trổ cửa và lô gia.
- Diện tích sàn tầng bán hầm : 80(m2)
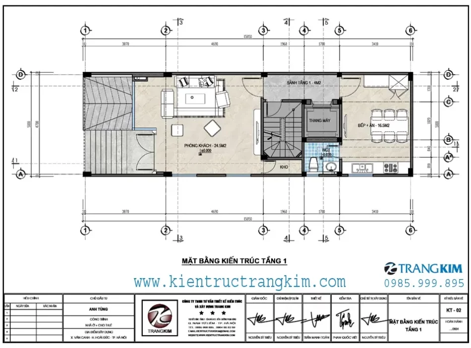
- Diện tích sàn tầng 1: 80m2)
- Diện tích sàn tầng 2 – 6: 95m2
- Diện tích sàn tầng tum: 65m2
- Tổng diện xây dựng: 700 (m2)
- Chủ đầu tư: ông Nguyễn Đắc Tùng
- Địa chỉ công trình : xã Vân Canh, huyện Hoài Đức, tp Hà Nội.
- Đơn vị thiết kế : Công ty tư vấn Thiết Kế Kiến trúc và Xây Dựng Trang Kim
Công năng sử dụng từng tầng nhà
Công năng sử dụng các tầng như sau:
- Mặt BằngTầng Hầm bao gồm không gian để xe ô tố,xe máy, xe đạp, cầu thang bộ, thang máy, sảnh thang tầng hầm..
- Mặt BằngTầng 1 – Nhà ở Gia Đình: bao gồm tam cấp, cầu thang bộ + thang máy + sảnh tầng, không gian phòng khách 24.5m2, phòng bếp + ăn – 16.5m2, wc 2.5m2.
- Mặt BằngTầng 2, 3, 4, 5 cho thuê trọ: bao gồm cầu thang bộ + thang máy + sảnh tầng, 03 phòng cho thuê khép kín với diện tích 13.5 – 22m2 bao gồm không gian khách ( giường ngủ kích thước 1.6x2m, tủ quần áo, tủ bếp, tủ lạnh, điều hòa, bàn làm việc học tập, ban công lô gia cây xanh 1.2m2) wc khép kín 3m2.
- Mặt BằngTầng 6 – Nhà ở Gia Đình: bao gồm cầu thang bộ + thang máy + sảnh tầng, 03 phòng ngủ diện tích 14 – 24m2 có wc khép kín, lô gia cây xanh.
- Mặt BằngTầng tum – Nhà ở gia đình: bao gồm cầu thang bộ + thang máy + sảnh tầng, 03 phòng ngủ diện tích 14 – 17.5m2 có wc khép kín, lô gia cây xanh. Sân chơi + phơi – 25.5m2.

Hình ảnh phối cảnh căn nhà gia chủ mong muốn
☛ Mời tham khảo thêm: 50++ mẫu thiết kế căn hộ cho thuê hiện đại,sang trọng.
Mặt bằng thiết kế chung cư mini cho thuê mặt tiền 5m kết hợp ở gia đình.
Mặt bằng thiết kế tầng mái

Mặt bằng thiết kế mái
Mặt bằng thiết kế tầng 1

Mặt bằng nội thất tầng 1
Mặt bằng thiết kế tầng 2

Mặt bằng nội thất tầng 2
Mặt bằng thiết kế tầng 3

Mặt bằng nội thất tầng 3
Mặt bằng thiết kế tầng 4

Mặt bằng nội thất tầng 4
Mặt bằng thiết kế tầng 5

Mặt bằng nội thất tầng 5
Mặt bằng thiết kế tầng 6

Mặt bằng nội thất tầng 6
Mặt bằng thiết kế tầng 7

Mặt bằng nội thất tầng 7
Mặt bằng thiết kế tầng bán hầm

Mặt bằng thiết kế tầng bán hầm
Hình ảnh phối cảnh căn nhà
Dưới đây là hình ảnh phối cảnh thiết kế chung cư mini cho thuê mặt tiền 5m có tầng bán hầm kết hợp ở gia đình tại xã Vân Canh, huyện Hoài Đức, tp Hà Nội.

Phối cảnh kiến trúc chung cư mini + ở gia đình – Góc 1

Phối cảnh kiến trúc chung cư mini + ở gia đình – Góc 2

Phối cảnh kiến trúc chung cư mini + ở gia đình – Góc 3

Phối cảnh kiến trúc chung cư mini + ở gia đình – Góc 4

Phối cảnh kiến trúc chung cư mini + ở gia đình – Góc 5

Phối cảnh kiến trúc chung cư mini + ở gia đình – Góc 6
☛ Tham khảo nhiều hơn: 100++ mẫu thiết kế nhà cho thuê hiện đại ,tiện nghi.
Nếu bạn cần thêm sự tư vấn từ những chuyên gia giàu kinh nghiệm, đừng ngần ngại, hãy gọi ngay cho chúng tôi theo số 0985 999 895 (Zalo) hay email Gửi tư vấn, hoặc đơn giản hơn bạn chỉ cần để lại yêu cầu kèm số điện thoại của bạn thông qua FB Chat của Trang Kim. Chúng tôi sẽ liên hệ lại bạn trong thời gian sớm nhất.
Cảm ơn và chúc bạn sớm tìm được cho mình một không gian sống ưng ý!

