
Mục lục
Thông tin cơ bản về công trình
Thông tin về Thiết kế chung cư mini 6 tầng 1 tum có tầng gác xép tiện nghi rất chill tại xã Vân Canh, huyện Hoài Đức, tp Hà Nội.
Diện tích đất: 6m x 13.66m = 82m2 với 2 mặt thoáng trước sau trổ cửa và lô gia.
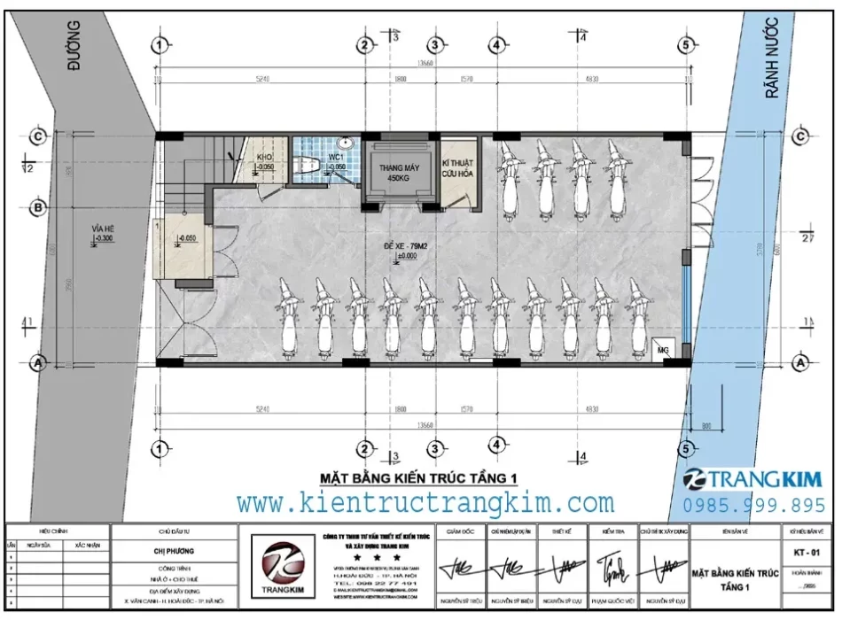
- Diện tích sàn tầng 1 : 82(m2)
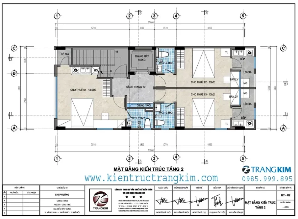
- Diện tích sàn tầng 2: 87m2)
- Diện tích sàn tầng 3,4,5 : 96m2
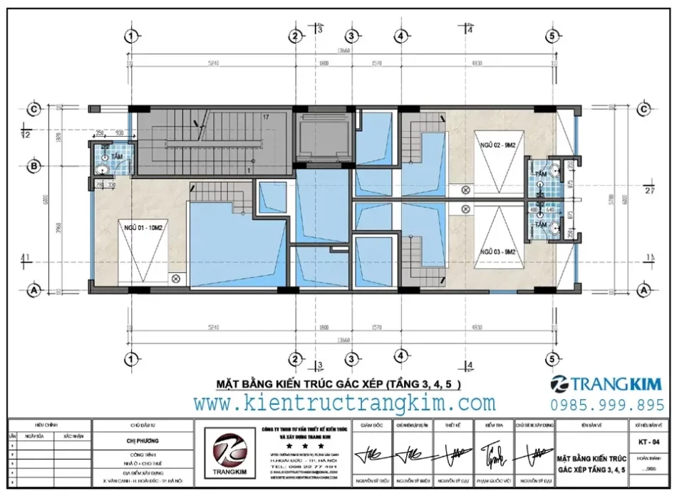
- Diện tích sàn tầng gác xép 3,4,5: 50m2
- Diện tích sàn tầng 6 : 96m2
- Diện tích sàn tầng tum: 60m2
- Tổng diện xây dựng: 763 (m2)
- Chủ đầu tư: Anh Ánh – Chị Phương
- Địa chỉ công trình : xóm 5 – Kim Hoàng, xã Vân Canh, huyện Hoài Đức, tp Hà Nội.
- Đơn vị thiết kế : Công ty tư vấn Thiết Kế Kiến trúc và Xây Dựng Trang Kim
Công năng sử dụng từng tầng nhà
Công năng sử dụng các tầng như sau:
Mặt BằngTầng 1bao gồm không gian để xe ô tố,xe máy, xe đạp, cầu thang bộ, thang máy, kỹ thuật cứu hỏa, sảnh thang tầng hầm..
Mặt BằngTầng 2: bao gồm cầu thang bộ + thang máy + sảnh tầng, 03 phòng cho thuê khép kín với đầy đủ nội thất diện tích từ 13.5 – 18m2, wc 2.5m2, lô gia kết hợp bếp nấu ngoài phòng 5.5m2.
Mặt BằngTầng 3, 4, 5: bao gồm cầu thang bộ + thang máy + sảnh tầng, 03 phòng cho thuê khép kín với diện tích 13.5 -18m2 bao gồm ( bộ ghế sofa phòng khách, cầu thang lên tầng gác xép, tủ quần áo, tủ bếp, tủ lạnh, điều hòa, bàn làm việc học tập, ban công lô gia cây xanh 1.2m2) wc khép kín 2.5 -2.m2.
Mặt BằngTầng Gác Xép 3, 4, 5: bao gồm cầu thang bộ + thang máy + sảnh tầng, 03 phòng ngủ khép kín với diện tích 9 -10m2 bao gồm giường ngủ + tắm đứng.
Mặt BằngTầng 6: bao gồm cầu thang bộ + thang máy + sảnh tầng, 03 phòng cho thuê khép kín với diện tích 13.5 -18m2 bao gồm ( giường ngủ, tủ quần áo, tủ bếp, tủ lạnh, điều hòa, bàn làm việc học tập, ban công lô gia cây xanh 1.2m2) wc khép kín 2.5 -2.m2.
Mặt BằngTầng tum: bao gồm cầu thang bộ + thang máy + sảnh tầng, 02 phòng cho thuê khép kín với diện tích 13.5 m2 bao gồm ( giường ngủ, tủ quần áo, tủ bếp, tủ lạnh, điều hòa, bàn làm việc học tập, ban công lô gia cây xanh 1.2m2) wc khép kín 2.5 -2.m2. kho đò, máy giặt + sân phơi.

Hình ảnh phối cảnh căn nhà theo mong muốn của gia chủ
☛ Tham khảo thêm: +50 mẫu thiết kế nhà cho thuê hiện đại, tiện nghi
Mặt bằng thiết kế chung cư mini đẹp có tầng gác xép tiện nghi.
Mặt bằng thiết kế tầng 1

Mặt bằng nội thất tầng 1
Mặt bằng thiết kế tầng 2

Mặt bằng nội thất tầng 2
Mặt bằng thiết kế tầng 3

Mặt bằng nội thất tầng 3
Mặt bằng thiết kế tầng 4,5

Mặt bằng nội thất tầng 4,5
Mặt bằng thiết kế kiến trúc tầng gác xép 3,4,5

Mặt bằng thiết kế kiến trúc tầng gác xép 3,4,5
Mặt bằng thiết kế tầng 6

Mặt bằng nội thất tầng 6
Mặt bằng thiết kế tầng tum

Mặt bằng nội thất tầng tum
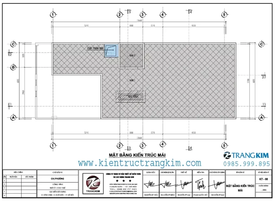
Mặt bằng thiết kế mái

Mặt bằng kiến trúc mái
Hình ảnh phối cảnh kiến trúc công trình
Hình ảnh Phối cảnh Thiết kế chung cư mini 6 tầng 1 tum có tầng gác xép tiện nghi rất chill tại xã Vân Canh, huyện Hoài Đức, tp Hà Nội.

Phối cảnh thiết kế chung cư mini có gác xép cho thuê – Góc 1

Phối cảnh thiết kế chung cư mini có gác xép cho thuê – Góc 2

Phối cảnh thiết kế chung cư mini có gác xép cho thuê – Góc 3

Phối cảnh thiết kế chung cư mini có gác xép cho thuê – Góc 4

Phối cảnh thiết kế chung cư mini có gác xép cho thuê – Góc 5

Phối cảnh thiết kế chung cư mini có gác xép cho thuê – Góc 6
Trên đây là mẫu thiết kế chung cư mini 6 tầng 1 tum có tầng gác xép tiện nghi cho thuê. Với sản phẩm này, chúng tôi hi vọng đã mang đến cho bạn một giải pháp hữu ích ngôi nhà đa chức năng tương lai của bạn
☛ Tham khảo nhiều hơn: 101+ mẫu thiết kế chung cư mini cho thuê tiện nghi, hiện đại.
Nếu bạn cần thêm sự tư vấn từ những chuyên gia giàu kinh nghiệm, đừng ngần ngại, hãy gọi ngay cho chúng tôi theo số 0985 999 895 (Zalo) hay email Gửi tư vấn, hoặc đơn giản hơn bạn chỉ cần để lại yêu cầu kèm số điện thoại của bạn thông qua FB Chat của Trang Kim. Chúng tôi sẽ liên hệ lại bạn trong thời gian sớm nhất.
Cảm ơn và chúc bạn sớm có được một không gian sống lý tưởng!

