
Mục lục
Thông tin cơ bản về công trình
Thông tin về Thiết kế chung cư mini cho thuê mặt tiền 6m với 5 tầng 1 lửng 1 tum tại phường Khương Trung, quận Thanh Xuân, tp Hà Nội.
Diện tích đất: 6.34m x 18.5m = 117m2 với 2 mặt thoáng trổ cửa và lô gia.
- Diện tích sàn tầng 1: 117m2)
- Diện tích sàn tầng Lửng : 117m2
- Diện tích sàn tầng 2,3,4: 125m2
- Diện tích sàn tầng 5: 90m2
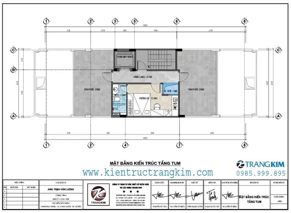
- Diện tích sàn tầng tum: 40m2
- Tổng diện xây dựng: 750 (m2)
- Chủ đầu tư: ông Trịnh Văn Lượng
- Địa chỉ công trình : phố Khương Trung, phường Khương Trung, quận Thanh Xuân, tp Hà Nội.
- Đơn vị thiết kế : Công ty tư vấn Thiết Kế Kiến trúc và Xây Dựng Trang Kim
Công năng sử dụng từng tầng nhà
Công năng sử dụng các tầng như sau:
Mặt BằngTầng 1 – Để xe: không gian để xe máy, xe đạp, cầu thang bộ, thang máy + sảnh tầng.
Mặt BằngTầng Lửng cho thuê trọ: bao gồm cầu thang bộ + thang máy + sảnh tầng, 05 phòng cho thuê khép kín với diện tích 13.5m2 bao gồm ( giường ngủ kích thước 1.6x2m, tủ quần áo, tủ bếp, tủ lạnh, điều hòa, bàn làm việc học tập, ban công lô gia cây xanh 1.2m2) wc khép kín 3m2.
Mặt BằngTầng 2, 3, 4 cho thuê trọ: bao gồm cầu thang bộ + thang máy + sảnh tầng, 03 phòng cho thuê khép kín với diện tích 13.5 m2 bao gồm ( giường ngủ kích thước 1.6x2m, tủ quần áo, tủ bếp, tủ lạnh, điều hòa, bàn làm việc học tập, ban công lô gia cây xanh 1.2m2) wc khép kín 3m2.
Mặt BằngTầng 5 – cho thuê trọ : bao gồm cầu thang bộ + thang máy + sảnh tầng, 03 phòng cho thuê khép kín với diện tích 13.5 m2 bao gồm ( giường ngủ kích thước 1.6x2m, tủ quần áo, tủ bếp, tủ lạnh, điều hòa, bàn làm việc học tập, ban công lô gia cây xanh 1.2m2) wc khép kín 3m2.
Mặt BằngTầng tum – cho thuê trọ: bao gồm cầu thang bộ + thang máy + sảnh tầng, 03 phòng cho thuê khép kín với diện tích 13.5 m2 bao gồm ( giường ngủ kích thước 1.6x2m, tủ quần áo, tủ bếp, tủ lạnh, điều hòa, bàn làm việc học tập, ban công lô gia cây xanh 1.2m2) wc khép kín 3m2. Sân chơi + phơi – 21m2.

Hình ảnh phối cảnh căn nhà theo mong muốn của gia chủ
☛ Tham khảo thêm: +50 mẫu thiết kế nhà cho thuê hiện đại,tiện nghi.
Mặt bằng thiết kế chung cư mini cho thuê mặt tiền 6m.
Mặt bằng thiết kế tầng 1

Mặt bằng nội thất tầng 1
Mặt bằng thiết kế tầng lửng

Mặt bằng nội thất tầng lửng
Mặt bằng thiết kế tầng 2,3,4

Mặt bằng nội thất tầng 2,3,4
Mặt bằng thiết kế tầng 5

Mặt bằng nội thất tầng 5
Mặt bằng thiết kế tầng tum

Mặt bằng nội thất tầng tum
Hình ảnh phối cảnh nội thất chung cư mini cho thuê.

Hình ảnh nội thất phòng 01

Hình ảnh nội thất phòng 02

Hình ảnh nội thất phòng 03

Hình ảnh nội thất phòng 04

Hình ảnh nội thất phòng 05

Hình ảnh nội thất wc 01

Hình ảnh nội thất wc 02

Hình ảnh nội thất wc 03

Hình ảnh nội thất wc 04,05·

Hình ảnh phối ảnh tổng thể – Góc 1

Hình ảnh phối ảnh tổng thể – Góc 2

Hình ảnh phối ảnh tổng thể – Góc 3

Hình ảnh phối ảnh tổng thể – Góc 4
Hình ảnh phối cảnh kiến trúc công trình
Hình ảnh Phối cảnh Thiết kế chung cư mini cho thuê mặt tiền 6m tại Thanh Xuân, Hà Nội.

Hình ảnh phối cảnh chung cư mini cho thuê mặt tiền 6m – Góc 1

Hình ảnh phối cảnh chung cư mini cho thuê mặt tiền 6m – Góc 2

Hình ảnh phối cảnh chung cư mini cho thuê mặt tiền 6m – Góc 3

Hình ảnh phối cảnh chung cư mini cho thuê mặt tiền 6m – Góc 4

Hình ảnh phối cảnh chung cư mini cho thuê mặt tiền 6m – Góc 5
☛ Tham khảo nhiều hơn: 101+ mẫu thiết kế chung cư mini cho thuê tiện nghi, hiện đại.
Nếu bạn cần thêm sự tư vấn từ những chuyên gia giàu kinh nghiệm, đừng ngần ngại, hãy gọi ngay cho chúng tôi theo số 0985 999 895 (Zalo) hay email Gửi tư vấn, hoặc đơn giản hơn bạn chỉ cần để lại yêu cầu kèm số điện thoại của bạn thông qua FB Chat của Trang Kim. Chúng tôi sẽ liên hệ lại bạn trong thời gian sớm nhất.
Cảm ơn và chúc bạn sớm có được một không gian sống lý tưởng!

