
Mục lục
Thông tin cơ bản về công trình
Thông tin về Thiết kế nhà ống 4 tầng 1 lửng mặt tiền 4m đẹp, hiện đại với 1 mặt thoáng trước tại khu đất dịch vụ 6.9ha xã Sơn Đồng, tp Hà Nội.
Diện tích đất 39m2 với 01 mặt thoáng:
- Diện tích sàn tầng 1 : 39(m2)
- Diện tích sàn tầng Lửng : 39m2
- Diện tích sàn tầng 2,3,4 : 44m2
- Tổng diện xây dựng: 215 (m2)
- Chủ đầu tư: Chị Hương
- Địa chỉ công trình : khu đất dịch vụ 6.9ha, xã Sơn Đồng, tp Hà Nội.
- Đơn vị thiết kế : Công ty tư vấn Thiết Kế Kiến trúc và Xây Dựng Trang Kim
Công năng sử dụng từng tầng nhà
Công năng sử dụng các tầng như sau:
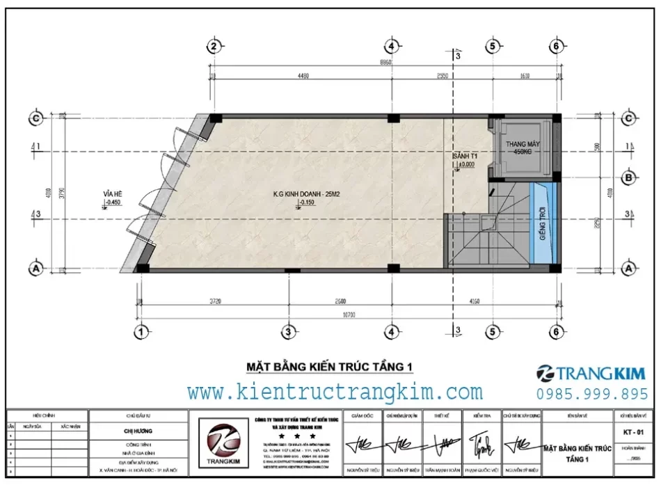
Mặt Bằng Kiến Trúc Tầng 1 bao gồm không gian kinh doanh, cầu thang bộ, thang máy, wc ở gầm cầu thang bộ.
Mặt Bằng Kiến Trúc Tầng lửng bao gồm cầu thang bộ + thang máy + sảnh tầng, 01 phòng khách kết hợp sinh hoạt chung gia đình , có wc khép kín – 3.3m2, giếng trời thông tầng.
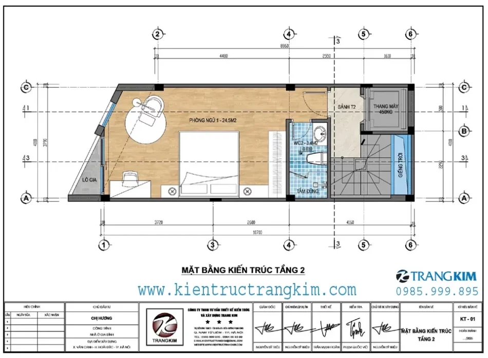
Mặt Bằng Kiến Trúc Tầng 2, 3 bao gồm cầu thang bộ + thang máy + sảnh tầng, giếng trời lấy sáng , gió tươi, 01 phòng ngủ có wc khép kín diện tích – 24.5m2. lô gia cây xanh.
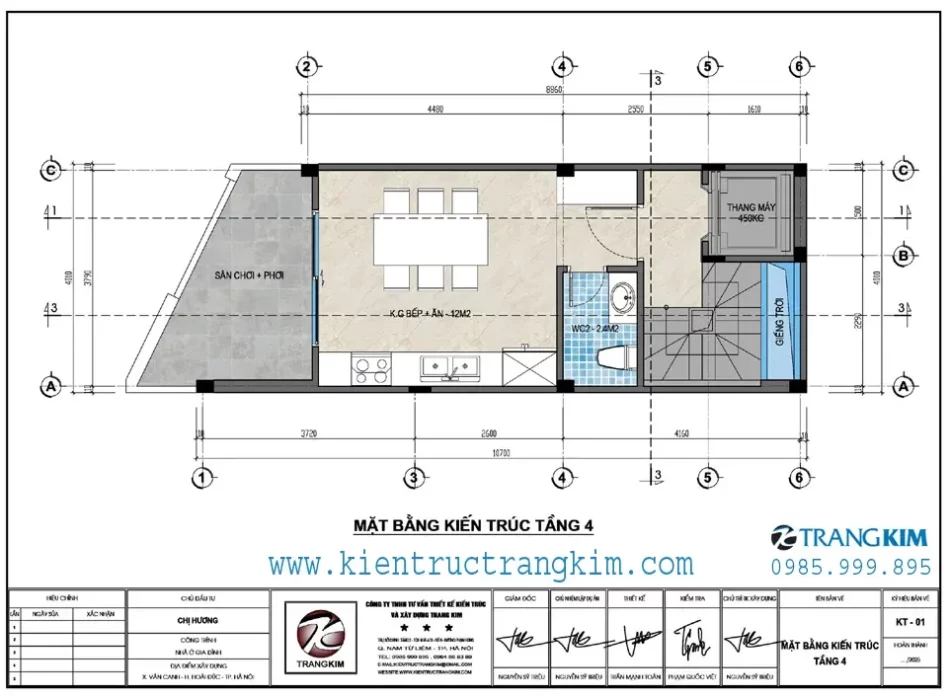
Mặt Bằng Kiến Trúc Tầng 4 bao gồm cầu thang bộ + thang máy + sảnh tầng, giếng trời lấy sáng, gió tươi, không gian bếp nấu + ăn, sân chơi + phơi có cây xanh.

Hình ảnh phối cảnh căn nhà theo mong muốn của gia chủ
☛ Tham khảo thêm: +50 mẫu thiết kế nhà ống hiện đại, sang trọng.
Mặt bằng thiết kế nhà ống 4 tầng 1 lửng mặt tiền 4m
Mặt bằng thiết kế tầng 1

Mặt bằng nội thất tầng 1
Mặt bằng thiết kế tầng lửng

Mặt bằng nội thất tầng lửng
Mặt bằng thiết kế tầng 2

Mặt bằng nội thất tầng 2
Mặt bằng thiết kế tầng 3

Mặt bằng nội thất tầng 3
Mặt bằng thiết kế tầng 4

Mặt bằng nội thất tầng 4
Hình ảnh phối cảnh kiến trúc công trình
Hình ảnh phối cảnh Thiết kế nhà ống 4 tầng 1 lửng mặt tiền 4m đẹp, hiện đại với 1 mặt thoáng trước tại khu đất dịch vụ 6.9ha xã Sơn Đồng, tp Hà Nội.

Phối cảnh thiết kế nhà ống mặt tiền 4m có tầng lửng – Góc 1

Phối cảnh thiết kế nhà ống mặt tiền 4m có tầng lửng – Góc 2

Phối cảnh thiết kế nhà ống mặt tiền 4m có tầng lửng – Góc 3

Phối cảnh thiết kế nhà ống mặt tiền 4m có tầng lửng – Góc 4
Chi phí
| Gói dịch vụ | Nội dung | SL | Đơn giá | Thành tiền |
| Thiết kế kiến trúc | Hồ sơ bao gồm:Kiến trúc, kết cấu, điện nước | 215 m2 | 100.000 | 21.500.000 Vnd |
☛ Tham khảo nhiều hơn: 100+ thiết kế nhà ống sang trọng, hiện đại.
Nếu bạn cần thêm tư vấn từ những chuyên gia giàu kinh nghiệm, đừng ngần ngại, hãy gọi ngay cho chúng tôi theo số 0985 999 895 (Zalo) hay email Gửi tư vấn, hoặc đơn giản hơn bạn chỉ cần để lại yêu cầu kèm số điện thoại của bạn thông qua FB Chat của Trang Kim. Chúng tôi sẽ liên hệ lại bạn trong thời gian sớm nhất.
Chúc bạn sớm tìm được một thiết kế văn phòng ưng ý!

