
Mục lục
Thông tin cơ bản về công trình
Thông tin về Thiết kế chung cư mini 50m2, 6 tầng 1 tum hiện đại mặt tiền 5m16 cho thuê trọ tại Phường Yên Nghĩa, tp Hà Nội.
Diện tích đất 5.16m x 9.69m với 1 mặt thoáng: 50(m2)
- Diện tích sàn tầng 1 : 50(m2)
- Diện tích sàn tầng 2- 6: 55(m2)
- Diện tích sàn tầng tum: 10(m2)
- Tổng diện xây dựng: 335 (m2)
- Chủ đầu tư: Anh Hiến
- Địa chỉ công trình : Yên Nghĩa, thành phố Hà Nội
- Đơn vị thiết kế : Công ty tư vấn Thiết Kế Kiến trúc và Xây Dựng Trang Kim
Công năng sử dụng từng tầng nhà
Công năng sử dụng các tầng như sau:
Tầng 1 bao gồm cầu thang bộ, thang máy, để xe máy của người thuê phòng.
Tầng 2 – 6 bao gồm thang bộ + thang máy + giếng trời + sảnh tầng, 02 phòng cho thuê khép kín mỗi phòng diện tích 13 – 16,5m2 đầy đủ nội thất tiện nghi ( giường ngủ 1.6x2m, tủ quần áo, bàn làm việc+ học tập, tủ lạnh, máy giặt, bếp nấu, bàn ăn, điều hòa) lô gia cây xanh 1.2m2. wc 3.2 m2 trong phòng.
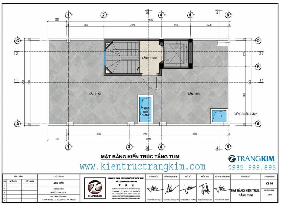
Tầng tum bao gồm thang bộ +thang máy + giếng trời + không gian giặt + phơi đồ.

Hình ảnh phối cảnh căn nhà theo mong muốn của gia chủ
☛ Tham khảo thêm: 30+ mẫu thiết kế nhà cho thuê đẹp, tiết kiệm chi phí
Mặt bằng thiết kế chung cư mini 50m2 cho thuê trọ
Mặt bằng thiết kế tầng 1

Mặt bằng nội thất tầng 1
Mặt bằng thiết kế tầng 2

Mặt bằng nội thất tầng 2
Mặt bằng thiết kế tầng 3,4,5

Mặt bằng nội thất tầng 3,4,5
Mặt bằng thiết kế tầng 6

Mặt bằng nội thất tầng 6
Mặt bằng thiết kế tầng tum

Mặt bằng nội thất tầng tum
Mặt bằng thiết kế mái

Mặt bằng kiến trúc mái
Hình ảnh phối cảnh kiến trúc công trình
Hình ảnh phối cảnh Thiết kế chung cư mini 50m2, 6 tầng 1 tum hiện đại mặt tiền 5m16 cho thuê trọ tại phường Yên Nghĩa, tp Hà Nội.

Phối cảnh thiết kế chung cư mini 50m2 cho thuê trọ – Góc 01

Phối cảnh thiết kế chung cư mini 50m2 cho thuê trọ – Góc 02

Phối cảnh thiết kế chung cư mini 50m2 cho thuê trọ – Góc 03

Phối cảnh thiết kế chung cư mini 50m2 cho thuê trọ – Góc 04

Phối cảnh thiết kế chung cư mini 50m2 cho thuê trọ – Góc 05
Trên đây là mẫu thiết kế nhà ống 6 tầng 1 tum cho thuê cực hiện đại. Với sản phẩm này, chúng tôi hy vọng đã mang đến cho bạn một giải pháp thiết kế hữu ích về mô hình kinh doanh nhà trọ trong tương lai của bạn.
☛ Tham khảo nhiều hơn:
Nếu bạn cần thêm sự tư vấn từ nhưng chuyên gia giàu kinh nghiệm, đừng ngần ngại, hãy gọi ngay cho chúng tôi theo số 0985 999 895 (Zalo) hay email Gửi tư vấn, hoặc đơn giản hơn bạn chỉ cần để lại yêu cầu kèm số điện thoại của bạn thông qua FB Chat của Trang Kim. Chúng tôi sẽ liên hệ lại bạn trong thời gian sớm nhất.

