
Mục lục
Thông tin cơ bản về công trình
Thông tin về Thiết kế biệt thự đẹp 2 tầng mái Nhật hiện đại với 4 phòng ngủ tiện nghi, sang trọng có wc khép kín tại xã Lạc Hồng, tỉnh Hưng Yên.
Diện tích đất 11m x14m = 154m2 với 2 mặt thoáng:
Diện tích xây nhà 119 với 2 mặt thoáng có sân trước.
- Diện tích sàn tầng 1 : 119m2)
- Diện tích sàn tầng 2: 113(m2)
- Tổng diện xây dựng: 232 (m2)
- Chủ đầu tư: Em Đạt
- Địa chỉ công trình : xã Lạc Hồng, tỉnh Hưng Yên
- Đơn vị thiết kế : Công ty tư vấn Thiết Kế Kiến trúc và Xây Dựng Trang Kim
Công năng sử dụng từng tầng nhà
Công năng sử dụng các tầng như sau:
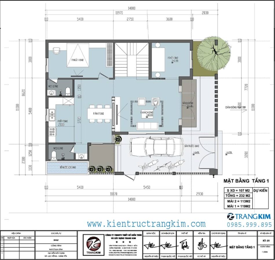
Mặt Bằng Kiến Trúc Tầng 1 bao gồm cổng hang rào sân vườn + sân xe máy ô tô 36m2, tam cấp + tiền sảnh chính, phòng khách 23m2, không gian thờ 10m2, cầu thang bộ + tiểu cảnh cây xanh, phòng ngủ ông bà – 15m2 + wc khép kín 2.7m2, sảnh phụ, bể lọc nước – 3m2, Phòng bếp 7.5m2 + ăn 17.5m2, phòng wc 2.2m2.
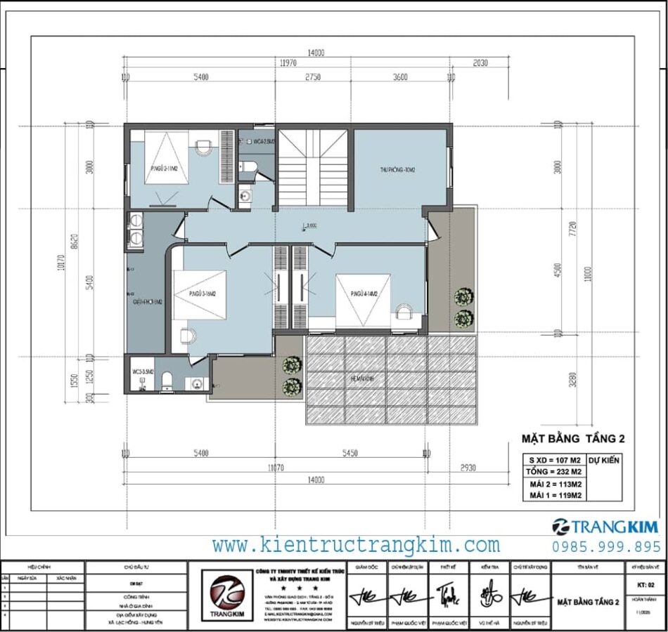
Mặt Bằng Kiến Trúc Tầng 2 bao gồm thang bộ + sảnh tầng, wc 3.5m2, không gian đọc sách – 10m2, Phòng ngủ bố mẹ ( phòng 3) – 16m2 + ban công cây xanh – 5m2 + wc 3.5m2, Phòng ngủ con trai (phòng 4) – 14m2 + ban công cây xanh, phòng ngủ con gái ( phòng 2) + sân chơi + phơi, cây xanh.

Hình ảnh phối cảnh căn nhà theo mong muốn của gia chủ
☛ Tham khảo thêm: Những mẫu thiết kế biệt thự 2 tầng đẹp, đầy đủ tiện nghi
Mặt bằng thiết kế biệt thự 2 tầng mái thái hiện đại
Mặt bằng thiết kế tầng 1

Mặt bằng nội thất tầng 1
Mặt bằng thiết kế tầng 2

Mặt bằng nội thất tầng 2
Hình ảnh phối cảnh kiến trúc công trình

Phối cảnh thiết kế biệt thự 2 tầng mái Nhật hiện đại – Góc 01

Phối cảnh thiết kế biệt thự 2 tầng mái Nhật hiện đại – Góc 02

Phối cảnh thiết kế biệt thự 2 tầng mái Nhật hiện đại – Góc 03

Phối cảnh thiết kế biệt thự 2 tầng mái Nhật hiện đại – Góc 04

Phối cảnh thiết kế biệt thự 2 tầng mái Nhật hiện đại – Góc 05

Phối cảnh thiết kế biệt thự 2 tầng mái Nhật hiện đại – Góc 06

Phối cảnh thiết kế biệt thự 2 tầng mái Nhật hiện đại – Góc 07
Chi phí
| Gói dịch vụ | Nội dung | SL | Đơn giá | Thành tiền |
| Thiết kế kiến trúc | Hồ sơ bao gồm:Kiến trúc, kết cấu, điện nước | 232 m2 | 125.000 | 29.000.000 Vnd |
Trên đây là mẫu thiết kế biệt thự 2 tầng hiện đại mái Nhật mà Trang Kim đã thực hiện. Để xem thêm các mẫu thiết kế biệt thự hiện đại bạn có thể “BẤM XEM TẠI ĐÂY”
☛ Hoặc tham khảo thêm: Tổng hợp thiết kế biệt thự đẹp, đầy đủ mặt bằng
Nếu bạn cần thêm tư vấn từ những chuyên gia giàu kinh nghiệm, đừng ngần ngại, hãy gọi ngay cho chúng tôi theo số 0985 999 895 (Zalo) hay email Gửi tư vấn, hoặc đơn giản hơn bạn chỉ cần để lại yêu cầu kèm số điện thoại của bạn thông qua FB Chat của Trang Kim. Chúng tôi sẽ liên hệ lại bạn trong thời gian sớm nhất.
Cảm ơn và chúc bạn sớm có được cho mình một không gian sống thật lý tưởng!

