Mục lục
Thông tin cơ bản về công trình
- Diện tích sàn tầng 1: 125 (m2)
- Diện tích sàn tầng 2: 130(m2)
- Tổng diện xây dựng: 255(m2)
- Chủ đầu tư: Anh Sơn
- Địa chỉ công trình: An Cảnh, huyện Khoái Châu, tỉnh Hưng Yên.
- Đơn vị thiết kế: Công ty TNHH tư vấn thiết kế kiến trúc và xây dựng Trang Kim
Công năng sử dụng các tầng
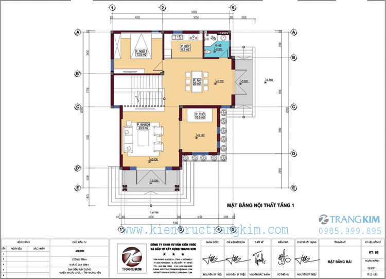
- Mặt bằng tầng 1: Sảnh chính 15m2, phòng khách 23.5m2, phòng thờ 10.5m2, cầu thang bộ 12m2, sảnh phụ 10m2, không gian bếp 6.5m2, không gian ăn 20m2, wc 4m2, phòng ngủ 1- 13.5m2.
- Mặt bằng tầng 2: cầu thang bộ 12m2 + sảnh tầng 5m2, phòng ngủ 2 – 24m2, phòng ngủ 3 – 13,5m2, phòng ngủ 4 – 16m2, sân phơi 5m2, phòng wc 4m2, sân chơi 10.5m2, ban công 7m2.

Hình ảnh phối cảnh căn biệt thự
☛ Tham khảo thêm: 35+ mẫu biệt thự 2 tầng đẹp, đầy đủ mặt bằng
Mặt bằng thiết kế biệt thự 2 tầng 4 phòng ngủ mái nhật hiện đại
Mặt bằng định vị kiến trúc công trình

Mặt bằng định vị biệt thự
Mặt bằng nội thất tầng 1

Mặt bằng thiết kế tầng 1
Mặt bằng nội thất tầng 2

Mặt bằng thiết kế tầng 2
Mặt bằng kiến trúc mái

Mặt bằng thiết kế mái
Hình ảnh phối cảnh thiết kế kiến trúc căn biệt thự

Phối cảnh kiến trúc biệt thự 2 tầng mái Nhật – Góc 1

Phối cảnh kiến trúc biệt thự 2 tầng mái Nhật – Góc 2

Phối cảnh kiến trúc biệt thự 2 tầng mái Nhật – Góc 3
Chi phí
| Gói dịch vụ | Nội dung | SL | Đơn giá | Thành tiền |
| Thiết kế kiến trúc | Hồ sơ bao gồm:Kiến trúc, kết cấu, điện nước | 255 m2 | 125.000 | 31.875.000 Vnd |
Trên đây là mẫu thiết kế biệt thự 2 tầng 4 phòng ngủ mái nhật hiện đại tại Khoái Châu, Hưng Yên, Hà Nội. Với sản phẩm này, chúng tôi hi vọng đã mang đến cho bạn một giải pháp tham khảo hữu ích cho không gian biệt thự tương lai của mình.
☛ Tham khảo thêm: 100+ mẫu thiết kế biệt thự đẹp, đầy đủ mặt bằng chi tiết
Nếu bạn cần thêm sự tư vấn từ nhưng chuyên gia giàu kinh nghiệm, đừng ngần ngại, hãy gọi ngay cho chúng tôi theo số 0985 999 895 (Zalo) hay email Gửi tư vấn, hoặc đơn giản hơn bạn chỉ cần để lại yêu cầu kèm số điện thoại của bạn thông qua FB Chat của Trang Kim. Chúng tôi sẽ liên hệ lại bạn trong thời gian sớm nhất.
Chúc bạn sớm có được cho mình một không gian sống thật ấn tượng!

