120 mẫu biệt thự 2 tầng mới nhất 2025
Trong xu hướng kiến trúc hiện đại, biệt thự 2 tầng đang trở thành lựa chọn hàng đầu cho nhiều gia đình Việt. Không chỉ bởi sự tiện nghi, dễ dàng di chuyển mà còn bởi khả năng kết hợp hài hòa giữa không gian sống và thiên nhiên. Từ những mẫu biệt thự 2 tầng hiện đại đến các thiết kế biệt thự 2 tầng tân cổ điển, mỗi phong cách đều mang đến một trải nghiệm sống độc đáo và đẳng cấp. Hãy cùng khám phá những mẫu thiết kế ấn tượng và tìm hiểu lý do vì sao biệt thự 2 tầng lại được ưa chuộng đến vậy.
Giới thiệu chung về biệt thự 2 tầng
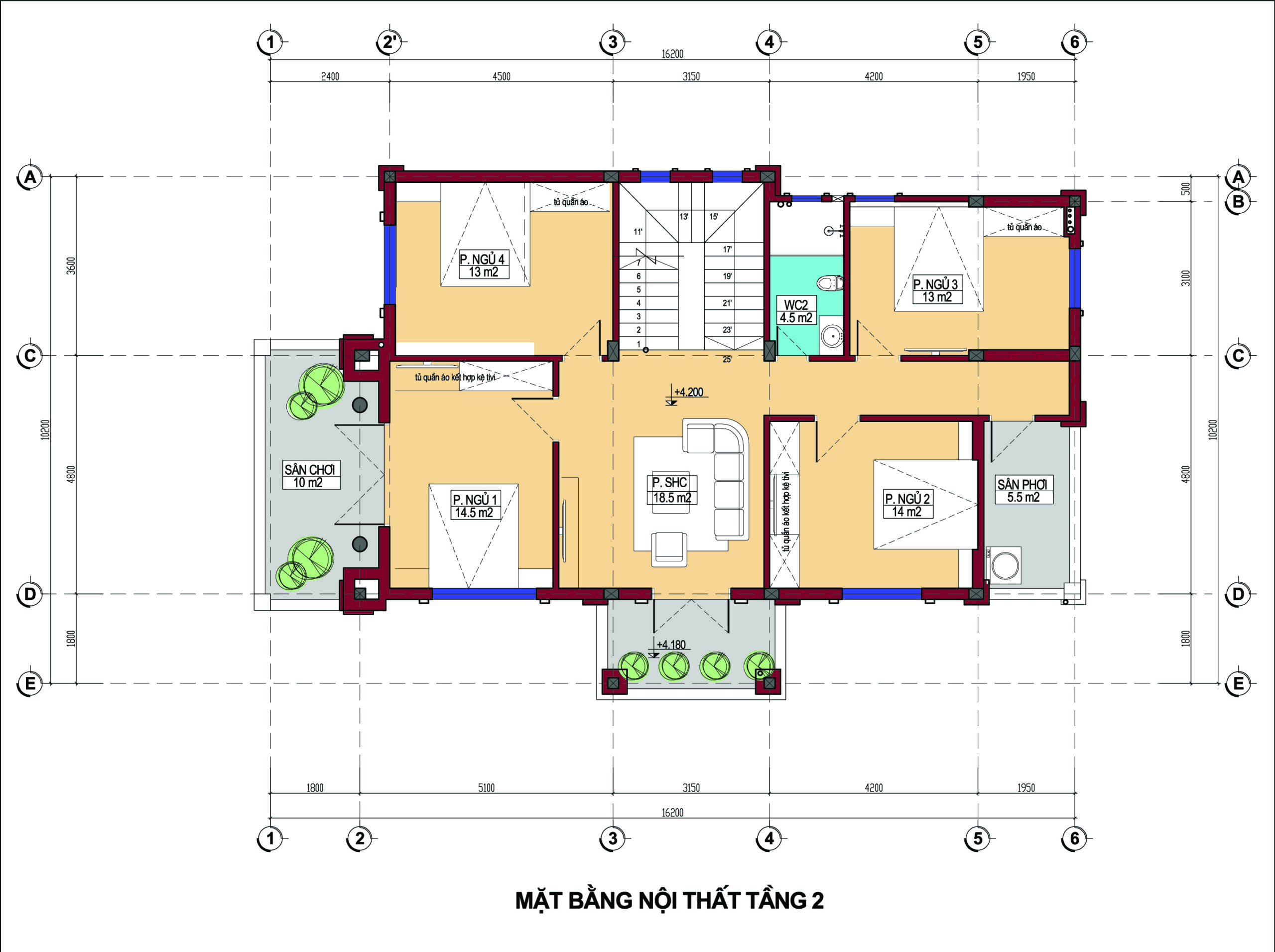
Biệt thự 2 tầng là loại hình nhà ở kết hợp giữa tính thẩm mỹ cao, công năng đầy đủ và khả năng tối ưu không gian theo chiều đứng. Đây là mẫu nhà lý tưởng dành cho gia đình từ 4-6 người, phù hợp với cả khu vực thành thị lẫn vùng ven đô có diện tích đất trung bình.
Không chỉ thể hiện sự bề thế và sang trọng, nhà biệt thự 2 tầng còn dễ dàng thiết kế theo nhiều phong cách như hiện đại, tân cổ điển, cổ điển hay kiểu nhà vườn thoáng mát. Với tầng trệt thường dùng cho không gian sinh hoạt chung, tầng trên dành cho các phòng ngủ hoặc làm việc, biệt thự 2 tầng đáp ứng tốt nhu cầu sống tiện nghi, riêng tư và đẳng cấp.
120 mẫu biệt thự 2 tầng mới nhất 2025
Khám phá 120 mẫu biệt thự 2 tầng mới nhất 2025 – tuyển chọn những thiết kế đang dẫn đầu xu hướng kiến trúc hiện đại và tân cổ điển. Mỗi mẫu biệt thự đều được tối ưu về công năng, phù hợp với nhu cầu sống ngày càng cao của gia đình Việt. Từ phong cách sang trọng đến tối giản, từ mái thái truyền thống đến mái bằng hiện đại, bộ sưu tập này mang lại nhiều lựa chọn linh hoạt cho diện tích đất và ngân sách khác nhau. Đây là nguồn cảm hứng lý tưởng cho những ai đang lên kế hoạch xây dựng tổ ấm đẳng cấp và tiện nghi trong năm 2025.

























