Móng đơn lệch tâm là gì?
Trong xây dựng nhà ở dân dụng, đặc biệt là nhà phố tại đô thị, không phải lúc nào móng cũng có thể bố trí đối xứng, vuông vắn theo đúng “chuẩn sách vở”. Khi gặp các điều kiện ràng buộc về ranh giới đất, mặt bằng hẹp hoặc nhà xây sát công trình bên cạnh, móng đơn lệch tâm trở thành một giải pháp kỹ thuật cần thiết để đảm bảo ổn định cho toàn bộ công trình.
Mục lục
- 1. Móng đơn lệch tâm là gì?
- 2. Vì sao nhà sát ranh, đất hẹp thường phải dùng móng đơn lệch tâm?
- 3. Những trường hợp điển hình nên áp dụng móng đơn lệch tâm
- 4. Nguyên lý làm việc của móng đơn lệch tâm
- 5. Lưu ý khi thiết kế và đọc bản vẽ móng đơn lệch tâm
- 6. Có nên thuê đơn vị thiết kế chuyên nghiệp cho móng đơn lệch tâm?
Khái niệm móng đơn lệch tâm trong xây dựng nhà ở
Móng đơn lệch tâm là một dạng móng đơn nhưng tâm cột không trùng với tâm móng. Nói cách khác, cột được đặt lệch về một phía so với bản móng bên dưới. Trường hợp này thường xảy ra khi:
-
Không thể mở rộng móng đều sang hai phía
-
Bị giới hạn bởi ranh đất hoặc nhà liền kề
-
Mặt bằng xây dựng quá hẹp
Khác với móng đơn thông thường (tâm cột trùng tâm móng), móng đơn lệch tâm phải được tính toán kỹ lưỡng hơn về kết cấu để đảm bảo tải trọng từ cột vẫn được truyền xuống nền đất một cách an toàn.
Điểm khác biệt giữa móng đơn lệch tâm và móng đơn thông thường
Sự khác biệt lớn nhất nằm ở cách phân bố tải trọng. Với móng đơn thông thường:
-
Tải trọng truyền xuống móng tương đối đều
-
Ứng suất nền phân bố đối xứng
Trong khi đó, với móng đơn lệch tâm:
-
Tải trọng có xu hướng lệch về một phía
-
Dễ phát sinh mô men làm lật móng nếu không xử lý đúng kỹ thuật
Chính vì vậy, móng đơn lệch tâm không thể thiết kế và thi công theo cảm tính, mà bắt buộc phải có giải pháp kết cấu đi kèm như dầm móng, giằng móng hoặc liên kết với các móng khác để cân bằng nội lực.
Vai trò của móng lệch tâm trong ổn định công trình
Nếu được thiết kế đúng, móng đơn lệch tâm vẫn đảm bảo:
-
Truyền tải trọng an toàn xuống nền đất
-
Hạn chế lún lệch và nứt công trình
-
Đáp ứng yêu cầu xây dựng trong điều kiện mặt bằng khó
Ngược lại, nếu xử lý sai, móng lệch tâm rất dễ gây ra hiện tượng nghiêng nhà, nứt tường hoặc lún không đều sau một thời gian sử dụng. Vì vậy, việc hiểu đúng bản chất của loại móng này là điều kiện tiên quyết trước khi áp dụng.
Vì sao nhà sát ranh, đất hẹp thường phải dùng móng đơn lệch tâm?
Trong thực tế, móng đơn lệch tâm gần như là “giải pháp bắt buộc” cho nhiều công trình nhà phố hiện nay, đặc biệt tại các khu dân cư đông đúc.
Hạn chế về mặt bằng và ranh giới xây dựng
Với những lô đất:
-
Có chiều ngang nhỏ
-
Xây sát ranh đất hoặc sát nhà hàng xóm
-
Không được phép xâm lấn sang phần đất bên cạnh
Việc bố trí móng đối xứng là điều gần như không thể. Nếu cố tình làm móng đơn thông thường, móng sẽ:
-
Chìa sang phần đất không thuộc quyền sử dụng
-
Gây tranh chấp ranh giới
-
Vi phạm quy định xây dựng
Trong trường hợp này, móng đơn lệch tâm cho phép thu gọn móng về phía trong ranh đất, vẫn đảm bảo đặt được cột đúng vị trí kiến trúc.
Bài toán phân bố tải trọng khi không thể đặt móng đối xứng
Khi cột đặt lệch tâm, tải trọng truyền xuống móng không còn đi qua trọng tâm bản móng. Điều này tạo ra:
-
Mô men làm xoay móng
-
Ứng suất nền phân bố không đều
-
Nguy cơ lún lệch về phía chịu tải lớn hơn
Để giải quyết bài toán này, kỹ sư kết cấu thường áp dụng các biện pháp như:
-
Tăng kích thước móng về phía trong
-
Liên kết móng lệch tâm với móng bên cạnh bằng dầm móng
-
Bố trí thép chịu mô men hợp lý
Tất cả những yếu tố này đều phải thể hiện rõ trong bản vẽ móng đơn lệch tâm, không thể xử lý bằng kinh nghiệm thi công đơn thuần.
Rủi ro nếu vẫn dùng móng đơn thông thường
Nhiều gia chủ vì muốn tiết kiệm chi phí đã bỏ qua giải pháp lệch tâm, cố tình dùng móng đơn thông thường cho nhà sát ranh. Hậu quả thường gặp là:
-
Móng bị xoay, lún không đều
-
Tường nhà nứt theo phương đứng hoặc chéo
-
Ảnh hưởng đến công trình liền kề
Những sự cố này thường không xuất hiện ngay, mà bộc lộ sau 1–3 năm sử dụng, khiến chi phí khắc phục rất tốn kém.

Những trường hợp điển hình nên áp dụng móng đơn lệch tâm
Sau khi hiểu rõ bản chất của móng đơn lệch tâm, câu hỏi tiếp theo mà nhiều gia chủ quan tâm là: khi nào thì thực sự cần dùng loại móng này? Trên thực tế, móng đơn lệch tâm không phải là giải pháp “đặc biệt hiếm gặp”, mà xuất hiện khá phổ biến trong xây dựng nhà ở đô thị, nơi quỹ đất ngày càng hạn chế.
Nhà xây sát nhà hàng xóm
Đây là trường hợp điển hình nhất phải áp dụng móng đơn lệch tâm. Khi xây nhà sát ranh:
-
Không được phép mở rộng móng sang phần đất bên cạnh
-
Khoảng cách giữa hai công trình gần như bằng 0
-
Việc đào móng bị giới hạn nghiêm ngặt
Trong điều kiện này, cột nhà vẫn cần đặt đúng vị trí kiến trúc, nhưng bản móng buộc phải thu gọn hoàn toàn về phía trong ranh đất, dẫn đến tâm cột bị lệch so với tâm móng.
Nếu không xử lý lệch tâm đúng kỹ thuật, tải trọng từ cột sẽ gây ra mô men làm xoay móng, rất dễ dẫn đến:
-
Lún lệch về phía trong
-
Nứt tường dọc theo trục cột
-
Ảnh hưởng đến cả nhà mình và nhà liền kề
Móng đơn lệch tâm, khi được thiết kế kèm dầm móng hoặc giằng móng hợp lý, sẽ giúp cân bằng nội lực và giữ công trình ổn định lâu dài.
Lô đất hẹp ngang, chiều sâu lớn
Nhiều lô đất ở đô thị có đặc điểm:
-
Ngang nhỏ (3–4m)
-
Chiều sâu lớn
-
Bố trí cột sát tường biên
Trong những trường hợp này, việc đặt móng đối xứng cho tất cả các cột là rất khó, đặc biệt ở các cột biên. Móng đơn lệch tâm cho phép:
-
Giữ nguyên vị trí cột theo phương án kiến trúc
-
Không vi phạm ranh đất
-
Đảm bảo truyền tải trọng an toàn xuống nền
Với đất hẹp, bài toán kết cấu không chỉ là “đủ chịu lực”, mà còn là phân bố tải trọng hợp lý để tránh lún không đều giữa các trục nhà.
Công trình cải tạo, nâng tầng nhà cũ
Khi cải tạo hoặc nâng tầng nhà cũ, móng hiện hữu thường:
-
Không nằm đúng tâm cột mới
-
Bị giới hạn bởi kết cấu xung quanh
-
Không thể mở rộng theo cả hai phía
Trong trường hợp này, móng đơn lệch tâm là giải pháp linh hoạt, cho phép:
-
Gia cố móng theo hướng phù hợp
-
Hạn chế can thiệp sang nhà bên cạnh
-
Đảm bảo ổn định cho kết cấu sau cải tạo
Tuy nhiên, với nhà cải tạo, việc tính toán móng lệch tâm cần đặc biệt cẩn trọng, vì nền đất và móng cũ đã chịu tải trong thời gian dài.
Nguyên lý làm việc của móng đơn lệch tâm
Hiểu được nguyên lý làm việc của móng đơn lệch tâm sẽ giúp gia chủ nhận ra vì sao loại móng này bắt buộc phải có thiết kế kỹ thuật rõ ràng, chứ không thể thi công theo cảm tính.
Cách móng lệch tâm truyền tải trọng xuống nền đất
Với móng đơn lệch tâm, tải trọng từ cột truyền xuống móng theo phương thẳng đứng nhưng không đi qua trọng tâm bản móng. Điều này tạo ra:
-
Lực nén lệch
-
Mô men uốn làm xoay móng
Nếu không có biện pháp xử lý, móng sẽ có xu hướng:
-
Bị lật về phía chịu tải lớn
-
Gây ứng suất nền không đều
-
Dẫn đến lún lệch theo thời gian
Do đó, móng lệch tâm phải được thiết kế để chống lại mô men bất lợi này.
Giải pháp cân bằng mô men và tăng độ ổn định
Để đảm bảo ổn định, kỹ sư kết cấu thường áp dụng một hoặc nhiều giải pháp sau:
-
Liên kết móng lệch tâm với móng bên cạnh bằng dầm móng
-
Tăng kích thước móng về phía trong nhà
-
Bố trí cốt thép chịu mô men hợp lý
Mục tiêu là tạo ra một hệ kết cấu làm việc đồng thời, giúp:
-
Giảm xoay móng
-
Phân bố tải trọng đều hơn xuống nền
-
Hạn chế lún không đều
Các giải pháp này đều cần được thể hiện rõ ràng trong hồ sơ thiết kế, đặc biệt là trong bản vẽ chi tiết móng.
Vai trò của dầm móng, giằng móng trong hệ lệch tâm
Trong móng đơn lệch tâm, dầm móng và giằng móng đóng vai trò “cân bằng lực”. Chúng giúp:
-
Chuyển một phần tải trọng từ móng lệch tâm sang móng khác
-
Tăng độ cứng tổng thể cho hệ móng
-
Giữ ổn định cao độ và phương vị công trình

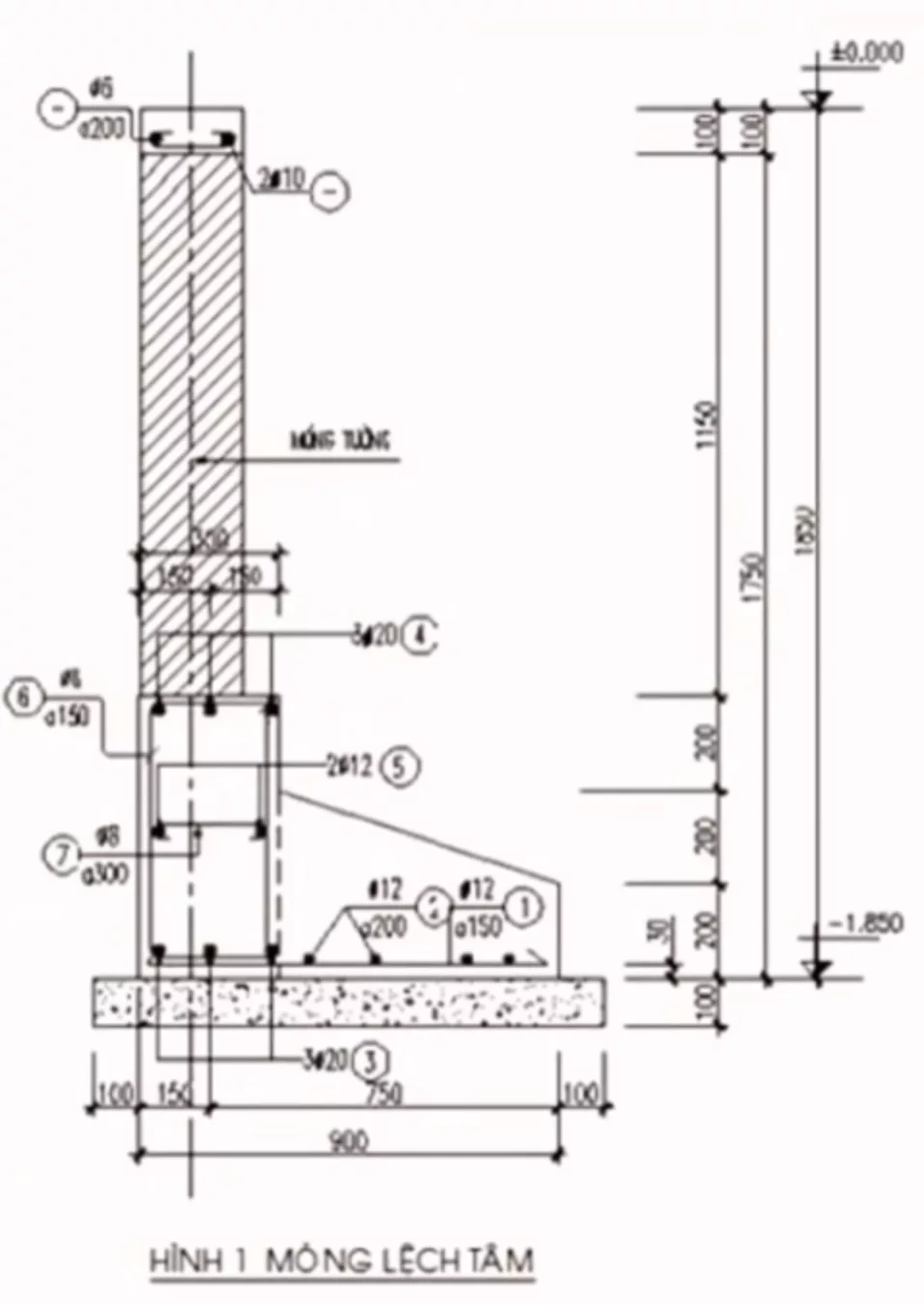
Lưu ý khi thiết kế và đọc bản vẽ móng đơn lệch tâm
Ở giai đoạn thiết kế, bản vẽ móng đơn lệch tâm là tài liệu quan trọng quyết định sự an toàn và ổn định lâu dài của công trình. Với loại móng này, chỉ cần sai sót nhỏ trong tính toán hoặc thi công cũng có thể dẫn đến lún lệch, nứt nhà sau một thời gian sử dụng.
Những thông số quan trọng cần kiểm tra trên bản vẽ
Khi xem bản vẽ móng đơn lệch tâm, gia chủ và đơn vị thi công cần đặc biệt chú ý các yếu tố sau:
-
Vị trí tim cột so với tim móng
-
Kích thước bản móng và chiều mở rộng về phía trong nhà
-
Cấu tạo thép chịu lực và thép chống mô men
-
Cách liên kết móng lệch tâm với các móng khác thông qua dầm móng
Các thông số này giúp đảm bảo tải trọng từ cột được phân bố tải trọng hợp lý xuống nền đất, hạn chế tối đa nguy cơ xoay móng hoặc lún lệch.
Sai sót thường gặp khi thi công móng lệch tâm
Trong thực tế, nhiều công trình gặp sự cố không phải do chọn sai giải pháp, mà do thi công không đúng bản vẽ. Một số sai sót phổ biến gồm:
-
Thu nhỏ kích thước móng để “tiết kiệm chi phí”
-
Bố trí thép không đúng chủng loại hoặc số lượng
-
Không thi công dầm móng liên kết theo thiết kế
Những sai lệch này làm giảm đáng kể khả năng ổn định của móng, đặc biệt với nhà xây sát ranh hoặc trên lô đất hẹp.
Kết hợp móng đơn lệch tâm với bó nền để tăng ổn định
Để móng đơn lệch tâm làm việc hiệu quả, cần kết hợp đồng bộ với hệ bó nền và giằng móng. Bó nền có vai trò:
-
Liên kết các móng thành một hệ thống thống nhất
-
Giảm chênh lệch lún giữa các khu vực trong nhà
-
Giữ ổn định cao độ nền và tường xây phía trên

? Tìm hiểu thêm giải pháp liên kết móng và nền tại xây bó nền để hạn chế lún nứt cho nhà sát ranh.
Có nên thuê đơn vị thiết kế chuyên nghiệp cho móng đơn lệch tâm?
Móng đơn lệch tâm là dạng móng “không đối xứng”, vì vậy rủi ro kỹ thuật cao hơn nhiều so với móng đơn thông thường. Việc thuê đơn vị thiết kế chuyên nghiệp không chỉ là lựa chọn an toàn, mà còn giúp tối ưu chi phí lâu dài.
Rủi ro khi làm móng lệch tâm theo kinh nghiệm
Nếu chỉ dựa vào kinh nghiệm thi công mà không có bản vẽ chuẩn, công trình có thể đối mặt với:
-
Lún lệch móng sau vài năm sử dụng
-
Nứt tường tại vị trí cột biên
-
Ảnh hưởng đến công trình liền kề, phát sinh tranh chấp
Những rủi ro này thường rất khó khắc phục triệt để khi nhà đã hoàn thiện.
Lợi ích của bản vẽ thiết kế kết cấu chi tiết
Một bộ hồ sơ thiết kế móng đơn lệch tâm bài bản sẽ giúp:
-
Tính toán chính xác nội lực và mô men lệch tâm
-
Đảm bảo công trình ổn định ngay cả trên đất hẹp
-
Chủ động kiểm soát chi phí và tiến độ thi công
Đặc biệt với nhà xây sát ranh, bản vẽ chi tiết là cơ sở quan trọng để thi công đúng và an toàn.
Khi nào nên tham vấn kỹ sư kết cấu
Gia chủ nên tham vấn kỹ sư kết cấu trong các trường hợp:
-
Nhà xây sát nhà hàng xóm
-
Lô đất hẹp, hình dạng không vuông vắn
-
Công trình cải tạo, nâng tầng nhà cũ
Sự tham gia của kỹ sư ngay từ đầu sẽ giúp lựa chọn giải pháp móng phù hợp nhất, tránh rủi ro về sau.
Liên hệ ngay với Công ty TNHH tư vấn thiết kế kiến trúc và xây dựng Trang Kim (Trang Kim)
? Địa chỉ: Tầng 2, tòa ATS, số 8 Phạm Hùng, Nam Từ Liêm, Hà Nội
? Hotline: 0985.999.895
? Website: https://kientructrangkim.com/
để được tư vấn chi tiết và cung cấp bản vẽ móng đơn lệch tâm phù hợp, an toàn và tối ưu cho công trình của bạn.

