Vì sao cần chọn đúng mẫu nhà trọ ngay từ khi xây 10 phòng?
Khi quyết định xây dựng 10 phòng trọ, nhiều chủ đầu tư thường tập trung vào chi phí xây dựng mà chưa dành đủ sự quan tâm cho việc lựa chọn mẫu nhà trọ cho thuê. Thực tế, mẫu nhà trọ không chỉ ảnh hưởng đến hình thức công trình mà còn quyết định trực tiếp đến hiệu quả khai thác, lợi nhuận và thời gian thu hồi vốn.
Mục lục
- 1. Vì sao cần chọn đúng mẫu nhà trọ ngay từ khi xây 10 phòng?
- 2. Các tiêu chí quan trọng khi lựa chọn mẫu nhà trọ cho thuê
- 3. Các mẫu nhà trọ phổ biến khi xây 10 phòng hiện nay
- 4. Nên chọn mẫu nhà trọ nào để tối ưu lợi nhuận?
- 5. Những sai lầm thường gặp khi chọn mẫu nhà trọ xây 10 phòng
- 6. Giải pháp tư vấn lựa chọn mẫu nhà trọ từ Trang Kim
Ảnh hưởng của mẫu nhà trọ đến hiệu quả khai thác
Cùng một số lượng 10 phòng, nhưng nếu chọn mẫu nhà trọ khác nhau, kết quả khai thác có thể chênh lệch rất lớn. Một mẫu nhà trọ được thiết kế phù hợp sẽ giúp:
-
Phòng dễ cho thuê ngay khi hoàn thiện
-
Tỷ lệ phòng trống thấp
-
Người thuê ở lâu dài, ít chuyển đi
Ngược lại, nếu chọn mẫu nhà trọ không phù hợp với nhu cầu thực tế, dù xây đủ 10 phòng, chủ nhà vẫn có thể rơi vào tình trạng khó cho thuê hoặc phải giảm giá.
Mối liên hệ giữa thiết kế và lợi nhuận cho thuê
Thiết kế không chỉ là vấn đề thẩm mỹ. Trong đầu tư nhà trọ, thiết kế ảnh hưởng trực tiếp đến:
-
Giá thuê từng phòng
-
Khả năng tăng giá thuê theo thời gian
-
Chi phí vận hành và bảo trì
Ví dụ, một mẫu nhà trọ hiện đại, bố trí không gian hợp lý, ánh sáng tốt thường được người thuê đánh giá cao hơn. Nhờ đó, mức giá thuê có thể cao hơn so với phòng trọ truyền thống, dù chi phí xây dựng ban đầu không chênh lệch quá nhiều.
Rủi ro khi chọn sai mô hình nhà trọ
Chọn sai mẫu nhà trọ là một trong những rủi ro lớn nhất khi xây 10 phòng. Những rủi ro thường gặp gồm:
-
Mẫu nhà trọ đẹp nhưng không phù hợp đối tượng thuê
-
Thiết kế tốn chi phí nhưng khó tăng giá thuê
-
Công năng bất tiện khiến người thuê nhanh trả phòng
Những sai lầm này không dễ khắc phục sau khi công trình đã hoàn thiện, bởi việc cải tạo lại sẽ tốn thêm chi phí và thời gian.
Các tiêu chí quan trọng khi lựa chọn mẫu nhà trọ cho thuê
Để lựa chọn đúng mẫu nhà trọ ngay từ đầu, chủ đầu tư cần dựa trên một số tiêu chí cốt lõi thay vì chạy theo cảm tính hay xu hướng nhất thời.
Đối tượng thuê mục tiêu là ai?
Câu hỏi đầu tiên cần trả lời là: bạn xây nhà trọ cho ai thuê?
-
Sinh viên
-
Người đi làm độc thân
-
Gia đình trẻ
Mỗi nhóm đối tượng sẽ có nhu cầu khác nhau về:
-
Diện tích phòng
-
Cách bố trí không gian
-
Mức giá thuê chấp nhận được
Việc xác định rõ đối tượng thuê giúp bạn lựa chọn mẫu nhà trọ phù hợp, tránh tình trạng “xây xong mới thấy không đúng nhu cầu”.
Vị trí khu đất và đặc điểm khu vực
Vị trí khu đất ảnh hưởng rất lớn đến lựa chọn mẫu nhà trọ. Ví dụ:
-
Gần trường học, khu công nghiệp: nên ưu tiên phòng tối ưu diện tích, dễ ở
-
Khu dân cư, đô thị: có thể đầu tư mẫu nhà trọ hiện đại, chỉn chu hơn
-
Đường nhỏ, hẻm hẹp: cần mẫu nhà trọ gọn gàng, bố trí hợp lý
Chọn mẫu nhà trọ phù hợp với khu vực sẽ giúp công trình hòa nhập tốt với môi trường xung quanh và dễ cho thuê hơn.
Ngân sách đầu tư và thời gian hoàn vốn
Không phải chủ đầu tư nào cũng có cùng mức ngân sách. Vì vậy, khi lựa chọn mẫu nhà trọ cho thuê, cần cân nhắc:
-
Mức đầu tư ban đầu có phù hợp tài chính hay không
-
Thời gian dự kiến thu hồi vốn
-
Khả năng sinh lời trong dài hạn
Một mẫu nhà trọ quá tốn kém nhưng giá thuê khu vực không cao sẽ khiến thời gian hoàn vốn kéo dài, ảnh hưởng đến lợi nhuận.
Khả năng mở rộng và khai thác lâu dài
Ngoài bài toán trước mắt, chủ đầu tư cũng nên nghĩ đến việc khai thác lâu dài:
-
Mẫu nhà trọ có dễ cải tạo, nâng cấp trong tương lai không?
-
Có thể tăng tiện ích để tăng giá thuê hay không?
-
Công trình có bền và dễ bảo trì không?
Những yếu tố này giúp đảm bảo hiệu quả đầu tư không chỉ trong 1–2 năm đầu mà còn trong nhiều năm sau.
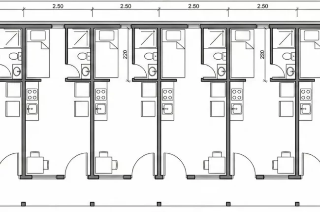
Các mẫu nhà trọ phổ biến khi xây 10 phòng hiện nay
Trên thực tế, khi xây 10 phòng trọ, có một số mẫu nhà trọ được lựa chọn nhiều nhất nhờ tính linh hoạt và hiệu quả khai thác.
Mẫu nhà trọ hiện đại không gác lửng
Đây là mẫu nhà trọ phù hợp với những khu đất rộng, chi phí đầu tư vừa phải. Đặc điểm của mẫu này là:
-
Kết cấu đơn giản, dễ thi công
-
Chi phí xây dựng thấp hơn
-
Phù hợp với người thuê ngắn hạn
Tuy nhiên, nhược điểm là diện tích sử dụng không lớn, giá thuê thường khó tăng mạnh nếu khu vực cạnh tranh cao.
Mẫu nhà trọ có gác lửng tối ưu diện tích
Nhà trọ có gác lửng là lựa chọn rất phổ biến khi xây 10 phòng, đặc biệt ở khu vực đông sinh viên hoặc người đi làm trẻ. Ưu điểm của mẫu này gồm:
-
Tăng diện tích sử dụng mà không cần mở rộng mặt bằng
-
Phân tách khu ngủ và sinh hoạt rõ ràng
-
Giá thuê thường cao hơn phòng không gác
Nếu thiết kế hợp lý về chiều cao trần và bố trí gác, mẫu nhà trọ này mang lại hiệu quả khai thác và lợi nhuận tốt.
Mẫu nhà trọ 1 trệt 1 lầu cho khu đất nhỏ
Với khu đất hạn chế về diện tích, mẫu nhà trọ 1 trệt 1 lầu giúp bố trí đủ 10 phòng mà vẫn đảm bảo công năng. Mẫu này thường có:
-
Hình thức giống nhà ở hơn nhà trọ truyền thống
-
Phù hợp với khu đô thị, khu dân cư
-
Giá thuê ổn định, dễ duy trì lâu dài
Tuy nhiên, chi phí xây dựng ban đầu sẽ cao hơn do phát sinh móng và kết cấu.
So sánh ưu – nhược điểm từng mẫu
Mỗi mẫu nhà trọ đều có ưu và nhược điểm riêng. Việc lựa chọn cần dựa trên:
-
Điều kiện khu đất
-
Đối tượng thuê
-
Ngân sách và mục tiêu lợi nhuận
Không nên áp dụng một mẫu nhà trọ cho mọi trường hợp, vì điều này rất dễ làm giảm hiệu quả đầu tư.

? Xem thêm mẫu nhà trọ đẹp hiện đại để tham khảo các phương án thiết kế giúp tăng hiệu quả khai thác và lợi nhuận cho thuê.
Nên chọn mẫu nhà trọ nào để tối ưu lợi nhuận?
Sau khi đã hiểu các mẫu nhà trọ phổ biến, câu hỏi quan trọng nhất với chủ đầu tư vẫn là: mẫu nào mang lại lợi nhuận tốt nhất khi xây 10 phòng?
Thực tế, không có một đáp án chung cho mọi trường hợp. Việc lựa chọn mẫu nhà trọ cho thuê cần dựa trên sự cân bằng giữa chi phí đầu tư, giá thuê kỳ vọng và khả năng khai thác lâu dài.
Trường hợp nên chọn nhà trọ hiện đại không gác lửng
Nhà trọ hiện đại không gác lửng phù hợp khi:
-
Quỹ đất rộng, không bị áp lực về diện tích
-
Đối tượng thuê ưu tiên giá hợp lý, ở ngắn hoặc trung hạn
-
Chủ đầu tư muốn kiểm soát chi phí xây dựng ban đầu
Ưu điểm lớn nhất của mô hình này là:
-
Chi phí đầu tư thấp hơn
-
Thi công nhanh, dễ quản lý
-
Ít phát sinh về kết cấu
Tuy nhiên, nhược điểm là:
-
Diện tích sử dụng hạn chế
-
Giá thuê khó bật lên cao nếu khu vực cạnh tranh
-
Hiệu quả khai thác phụ thuộc nhiều vào vị trí
Vì vậy, mẫu nhà trọ này phù hợp với những khu vực có nhu cầu thuê ổn định nhưng nhạy cảm về giá.
Khi nào nhà trọ gác lửng mang lại hiệu quả cao?
Trong rất nhiều trường hợp, nhà trọ có gác lửng là lựa chọn mang lại hiệu quả khai thác tốt hơn khi xây 10 phòng. Mẫu này đặc biệt phù hợp nếu:
-
Diện tích đất không quá lớn
-
Đối tượng thuê là sinh viên, người đi làm trẻ
-
Khu vực có nhu cầu ở lâu dài
Lợi thế lớn nhất của gác lửng là:
-
Tăng diện tích sử dụng mà không cần mở rộng mặt bằng
-
Phân tách rõ không gian ngủ và sinh hoạt
-
Giá thuê thường cao hơn phòng không gác
Tuy nhiên, để gác lửng thực sự hiệu quả, thiết kế cần đảm bảo:
-
Chiều cao trần đủ thoáng
-
Gác vừa đủ công năng, không chiếm toàn bộ không gian
-
Ánh sáng và thông gió hợp lý
Nếu làm gác lửng theo kiểu “cho có”, chi phí tăng nhưng trải nghiệm thuê kém, lợi nhuận sẽ không như kỳ vọng.
Bài toán cân bằng giữa chi phí và giá thuê
Một sai lầm thường gặp là chỉ nhìn vào giá thuê mà quên mất chi phí đầu tư. Có những mẫu nhà trọ:
-
Đầu tư rất cao
-
Nhưng khu vực không cho phép tăng giá thuê tương ứng
Điều này dẫn đến thời gian hoàn vốn kéo dài, lợi nhuận thấp. Khi lựa chọn mẫu nhà trọ cho thuê, chủ đầu tư nên tự đặt ra các câu hỏi:
-
Giá thuê khu vực hiện tại là bao nhiêu?
-
Sau khi xây xong, giá thuê có thể cao hơn bao nhiêu?
-
Thời gian thu hồi vốn dự kiến là bao lâu?
Từ đó, chọn mẫu nhà trọ có tỷ lệ chi phí – lợi nhuận hợp lý, thay vì chạy theo mẫu đẹp hoặc “đang hot”.
Mẫu nhà trọ nào dễ cho thuê lâu dài?
Xét về dài hạn, những mẫu nhà trọ dễ cho thuê bền vững thường có đặc điểm:
-
Thiết kế đơn giản, hiện đại, không lỗi thời
-
Công năng rõ ràng, dễ sử dụng
-
Dễ bảo trì, sửa chữa
-
Phù hợp với nhiều nhóm đối tượng thuê
Trong bối cảnh cạnh tranh ngày càng cao, mẫu nhà trọ giúp người thuê ở thoải mái và muốn gắn bó lâu dài chính là mẫu mang lại lợi nhuận ổn định nhất.
Những sai lầm thường gặp khi chọn mẫu nhà trọ xây 10 phòng
Ngay cả khi đã tìm hiểu khá kỹ, nhiều chủ đầu tư vẫn mắc phải những sai lầm khiến hiệu quả khai thác không như mong đợi. Nhận diện sớm các sai lầm này sẽ giúp bạn tránh được rủi ro đáng tiếc.
Chọn mẫu theo cảm tính hoặc xu hướng
Không ít người chọn mẫu nhà trọ vì:
-
Thấy đẹp trên mạng
-
Nghe người quen giới thiệu
-
Đang là xu hướng tại khu vực khác
Tuy nhiên, mỗi khu đất, mỗi khu vực có đặc điểm riêng. Một mẫu nhà trọ phù hợp nơi này chưa chắc đã hiệu quả ở nơi khác. Chọn theo cảm tính rất dễ dẫn đến:
-
Chi phí đầu tư cao
-
Khó cho thuê
-
Phải cải tạo lại sau một thời gian ngắn
Không tính đến chi phí vận hành và bảo trì
Khi lựa chọn mẫu nhà trọ cho thuê, nhiều người chỉ tập trung vào chi phí xây dựng ban đầu mà quên mất chi phí vận hành sau này, như:
-
Bảo trì, sửa chữa
-
Thay thế vật liệu xuống cấp
-
Quản lý, vệ sinh
Những mẫu nhà trọ quá cầu kỳ thường:
-
Tốn chi phí bảo trì cao
-
Khó sửa chữa đồng loạt
-
Ảnh hưởng đến lợi nhuận dài hạn
Thiết kế đẹp nhưng khó khai thác
Một mẫu nhà trọ có thể rất đẹp về hình thức nhưng:
-
Bố trí công năng bất tiện
-
Phòng khó kê nội thất
-
Thiếu ánh sáng, thông gió
Những vấn đề này khiến người thuê:
-
Ở không thoải mái
-
Dễ trả phòng sớm
-
Không chấp nhận giá thuê cao
Với nhà trọ cho thuê, tính thực tế luôn quan trọng hơn hình thức.
Thiếu tính đồng bộ trong toàn bộ công trình
Khi xây 10 phòng, nếu mỗi phòng:
-
Một kiểu bố trí
-
Một mức hoàn thiện khác nhau
sẽ gây khó khăn cho quản lý và bảo trì. Ngoài ra, sự thiếu đồng bộ còn khiến công trình mất đi tính chuyên nghiệp trong mắt người thuê.
Một mẫu nhà trọ hiệu quả cần được:
-
Thiết kế đồng bộ ngay từ đầu
-
Thống nhất về công năng và vật liệu
-
Dễ nhân bản cho toàn bộ số phòng

Giải pháp tư vấn lựa chọn mẫu nhà trọ từ Trang Kim
Sau khi đã phân tích các mô hình phổ biến, ưu – nhược điểm và những sai lầm thường gặp, bước cuối cùng nhưng quan trọng nhất chính là lựa chọn phương án thiết kế phù hợp với khu đất, ngân sách và mục tiêu lợi nhuận. Đây cũng là lý do vì sao nhiều chủ đầu tư tìm đến đơn vị tư vấn chuyên môn ngay từ đầu.
Phân tích mô hình nhà trọ theo từng khu đất
Mỗi khu đất đều có đặc điểm riêng về:
-
Diện tích và hình dạng
-
Vị trí, lộ giới, hạ tầng xung quanh
-
Đối tượng thuê tiềm năng
Trang Kim không áp dụng một mẫu nhà trọ cố định cho mọi công trình. Thay vào đó, mỗi phương án đều được phân tích dựa trên điều kiện thực tế của khu đất, từ đó xác định:
-
Nên xây nhà trọ không gác hay có gác lửng
-
Bố trí 10 phòng trên 1 tầng hay 1 trệt 1 lầu
-
Diện tích mỗi phòng bao nhiêu là hợp lý
Cách tiếp cận này giúp tránh tình trạng “xây xong mới thấy không phù hợp”, vốn là nguyên nhân khiến hiệu quả khai thác giảm sút.
Tư vấn mẫu nhà trọ tối ưu chi phí – lợi nhuận
Trong bài toán lựa chọn mẫu nhà trọ cho thuê, Trang Kim luôn đặt yếu tố hiệu quả đầu tư lên hàng đầu. Việc tư vấn không chỉ xoay quanh thiết kế đẹp, mà tập trung vào:
-
Chi phí xây dựng hợp lý
-
Giá thuê có thể đạt được
-
Thời gian thu hồi vốn
-
Lợi nhuận khai thác lâu dài
Thay vì đầu tư dàn trải hoặc quá tay vào những hạng mục không cần thiết, phương án thiết kế sẽ được cân nhắc để:
-
Tối ưu diện tích sử dụng
-
Kiểm soát chi phí xây dựng
-
Giữ được chất lượng và trải nghiệm thuê tốt
Thiết kế giúp tăng hiệu quả khai thác thực tế
Một mẫu nhà trọ hiệu quả không chỉ đẹp trên bản vẽ mà phải hoạt động tốt khi đưa vào cho thuê. Trang Kim tập trung vào các yếu tố:
-
Công năng rõ ràng, dễ sử dụng
-
Không gian thoáng, ánh sáng và thông gió tốt
-
Thiết kế đồng bộ cho toàn bộ 10 phòng
Nhờ đó, nhà trọ sau khi hoàn thiện thường:
-
Dễ cho thuê ngay từ đầu
-
Ít phòng trống
-
Người thuê ở lâu dài hơn
-
Dễ quản lý và bảo trì
Đây chính là nền tảng để đảm bảo lợi nhuận ổn định và bền vững cho chủ đầu tư.

? Truy cập ngay để tham khảo xây 10 phòng trọ bao nhiêu tiền và lựa chọn phương án đầu tư phù hợp với ngân sách thực tế.
Nếu bạn đang băn khoăn nên chọn mẫu nhà trọ nào khi xây 10 phòng, hoặc muốn có phương án thiết kế giúp dễ cho thuê – tối ưu chi phí – tăng lợi nhuận:
Liên hệ ngay với Công ty TNHH tư vấn thiết kế kiến trúc và xây dựng Trang Kim
? Địa chỉ: Tầng 2, tòa ATS, số 8 Phạm Hùng, Nam Từ Liêm, Hà Nội
? Hotline: 0985.999.895
? Website: https://kientructrangkim.com/
Để được tư vấn chi tiết và giải pháp thiết kế nhà trọ phù hợp nhất với nhu cầu đầu tư của bạn.

