Mục lục
Thông tin cơ bản về công trình
Thông tin về thiết kế biệt thự 3 tầng mái Thái tại Khoái Châu, Hưng Yên
- Diện tích sàn tầng 1: 135 (m2)
- Diện tích sàn tầng 2: 130(m2)
- Diện tích sàn tầng 3: 120(m2)
- Tổng diện xây dựng: 385(m2)
- Chủ đầu tư: Anh Tú
- Địa chỉ công trình: xã Dân Tiến, huyện Khoái Châu, tỉnh Hưng Yên.
- Đơn vị thiết kế: Công ty TNHH tư vấn thiết kế kiến trúc và xây dựng Trang Kim
Công năng thiết kế từng tầng nhà
Công năng sử dụng các tầng như sau:
- Mặt bằng tầng 1: Sảnh chính 15m2, phòng khách 50m2, phòng thờ 10.5m2, cầu thang bộ 12m2, sảnh phụ 10m2, không gian bếp 7m2, không gian ăn 22m2, wc 3.5m2, phòng ngủ 1- 15m2.
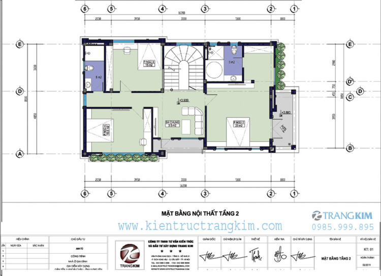
- Mặt bằng tầng 2: cầu thang bộ 15m2 + sảnh tầng phòng sinh hoạt chung 13.5m2, phòng ngủ 2 – 23.5m2 + wc vip 8m2 + thay đồ + ban công 7m2, phòng ngủ 3 – 15m2, phòng ngủ 4 – 16.5m2, wc 5m2.
- Mặt bằng tầng 3: cầu thang bộ 15m2 + sảnh tầng, phòng sinh giải trí 17m2 + ban công 3m2, phòng karaoke 20m2, phòng ngủ 5 -13.5m2 + wc khép kín 3.6m2 + ban công 3m2, phòng thờ 12m2, sân chơi 13m2,…

Hình ảnh biệt thự 3 tầng mái thái sau khi lên phối cảnh
☛ Gửi bạn: 80+ mẫu biệt thự 3 tầng đẹp đáng sống
Mặt bằng thiết kế biệt thự 3 tầng mái thái hiện đại
Mặt bằng thiết kế tầng 1

Mặt bằng nội thất tầng 1
Mặt bằng thiết kế tầng 2

Mặt bằng nội thất tầng 2
Mặt bằng thiết kế tầng 3

Mặt bằng nội thất tầng 2
Mặt bằng thiết kế mái

Mặt bằng kiến trúc mái
Hình ảnh phối cảnh thiết kế căn biệt thự

Phối cảnh kiến trúc biệt thự 3 tầng mái Thái – Góc 1

Phối cảnh kiến trúc biệt thự 3 tầng mái Thái – Góc 2

Phối cảnh kiến trúc biệt thự 3 tầng mái Thái – Góc 3
Chi phí
| Gói dịch vụ | Nội dung | SL | Đơn giá | Thành tiền |
| Thiết kế kiến trúc | Hồ sơ bao gồm:Kiến trúc, kết cấu, điện nước | 385 m2 | 150.000 | 57.750.000 Vnd |
Mẫu thiết kế Trang Kim gửi tới có đáp ứng yêu cầu của bạn không? Hy vọng đây là một giải pháp tối ưu bạn có thể tham khảo cho ngôi nhà của mình.
☛ Tham khảo thêm nhiều hơn: 100+ mẫu thiết kế biệt thự đẹp, đầy đủ mặt bằng chi tiết
Nếu bạn cần thêm sự tư vấn từ những chuyên gia giàu kinh nghiệm, đừng ngần ngại, hãy gọi ngay cho chúng tôi theo số 0985 999 895 (Zalo) hay email Gửi tư vấn, hoặc đơn giản hơn bạn chỉ cần để lại yêu cầu kèm số điện thoại của bạn thông qua FB Chat của Trang Kim. Chúng tôi sẽ liên hệ lại bạn trong thời gian sớm nhất.
Cảm ơn và chúc bạn sớm tìm được cho mình một không gian biệt thự ưng ý!

