Một thiết kế biệt biệt thự mang một vẻ đẹp nhẹ nhàng, giản dị rất phù hợp với lối sống cũng như điều kiện sinh hoạt của một thị trấn nhỏ ở Sơn La. Công trình được thiết kế trên một diện tích vừa đủ giúp đáp ứng đầy đủ nhu cầu của chủ nhân căn nhà cả về mặt công năng lẫn hình thức kiến trúc của một căn biệt thự 1 tầng mang phong cách hiện đại. Ngay trong bài viết này Trang Kim sẽ giới thiệu về mẫu thiết kế biệt thự 1 tầng hiện đại như vậy.
Mục lục
Thông tin về căn biệt thự 1 tầng hiện đại
- Diện tích đất: 420(m2)
- Diện tích sàn: 160 (m2)
- Tổng diện xây dựng: 160(m2 )
- Chủ đầu tư: Anh Phương
- Địa chỉ : Thị trấn Hát Lót – Huyện Mai Sơn – Tỉnh Sơn La
- Thiết kế : Công ty TNHH tư vấn thiết kế kiến trúc và xây dựng Trang Kim

Phối cảnh thiết kế biệt thự 1 tầng hiện đại – Góc 1
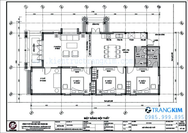
Phương án bố trí công năng căn biệt thự 1 tầng hiện đại
Tầng 1: Tiền sảnh 12m2, Phòng khách 28m2, sảnh phụ 7.5m2, bếp + ăn 25m2, wc 4m2, phòng thờ 12.8m2, phòng ngủ 1 = 14.5m2, phòng ngủ 2 = 14.6m2, phòng ngủ 3 rộng 15m2 có wc khép kín 4m2. Hành lang thoáng phía sau rộng 1m dài theo chiều dọc nhà, sân phơi sau nhà rộng 13.6m2, sân gia công 32m2, không gian kinh doanh cà phê cạnh nhà 90m2.
Mặt bằng thiết kế biệt thự 1 tầng hiện đại
Trên tổng mặt bằng đất rộng 420m2 KTS đã đưa ra thiết kế quy hoạch như sau: Toàn bộ nhà được thiết kế sát với nhà hàng xóm bên cạnh nhưng bớt lại 1m chiều ngang để làm thông gió và lấy ánh sáng cho các phòng chức năng.
Cổng được thiết kế làm 2 với một cổng chính và 1 cổng phụ đem đến sự riêng tư cần thiết trong sinh hoạt gia đình và kinh doanh. Sân phơi được bố trí sau nhà giúp tạo thẩm mỹ cho kiến trúc mặt tiền và mặt bên. Khoảng cây xanh được bố trí ở những vị trí đã được tính toán cẩn thận cho sự phát triển sau này nhằm mang đến một cách trang trí tuyệt vời cho không gian kinh doanh cà phê.

Mặt bằng tổng thể biệt thự 1 tầng hiện đại
Mặt bằng tầng 1
Do đặc điểm thiết kế là biệt thự hiện đại 1 tầng mái thái nên tất cả các không gian sinh hoạt cần thiết trong một gia đình được bố trí xắp xếp dàn trải trên một mặt bằng duy nhất.
Từ sảnh chính của biệt thự bước vào phòng khách rộng với diện tích gần 30 m2 đưa đến cho gia chủ rất nhiều hình thức để bố trí đồ đạc nội thất trong không gian này. Không gian phòng khách này đặc biệt sáng và thoáng do được lấy sáng từ 2 phía của nhà nên đảm bảo cho nhu cầu tiếp khách hoặc ngồi thư giãn của chủ nhà. Không gian phòng khách và ăn được ngăn cách nhau bởi hệ vách trang trí rất điệu đà mang tính thẩm mỹ cao tạo cho hai không gian có sự liên thông nhưng vẫn có sự riêng tư cần thiết trong sử dụng.
Sảnh phụ là không gian dành cho người nội trợ trong gia đình nên được thiết kế nhỏ hơn phù hợp việc sinh hoạt hàng ngày lẫn thẩm mỹ trên mặt đứng kiến trúc công trình. Kiến trúc sư đã thiết kế 2 phòng wc với một phòng wc được bố trí phục vụ cho sinh hoạt chung của gia đình và 2 phòng ngủ con, phòng wc còn lại được thiết kế trong phòng ngủ bố mẹ đảm bảo cho sinh hoạt riêng tư. Các phòng ngủ đều được bố trí với diện tích gần 15m2 đem lại sử dụng tốt nhất cho các thành viên trong gia đình.
Phòng thờ được thiết kế ở mặt tiền của biệt thự 1 tầng đảm bảo về hướng cũng như vị trí tốt nhất theo phong thủy đem đến cho gia chủ một không gian tâm linh cũng như một tư tưởng thoải mái nhất mỗi khi sống trong đó. Sân phơi được thiết kế ở sau nhà đem đến sự gọn gàng ngăn nắp tạo một hình ảnh đẹp cho mặt tiền kiến trúc biệt thự.
Với không gian sân bên cạnh nhà, gia chủ muốn dùng để kinh doanh cà phê trong một tương lai gần theo dạng cà phê vườn, điều đó cũng không ảnh hưởng nhiều đến giá trị sử dụng cũng như giá trị thẩm mỹ của biệt thự một tầng hiện đại.

Mặt bằng thiết kế biệt thự 1 tầng hiện đại – Tầng 1
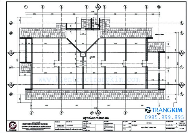
Mặt bằng xây tương mái
Sau khi đổ bê tông mái bằng xong kiến trúc sư bố trí xây hệ tường mái thu hồi để từ đó có thể ghép hệ vì kéo thép lợp ngói màu theo đúng như phối cảnh bên ngoài. Mặt bằng mái được phủ kín hết toàn bộ không gian sinh hoạt của gia đình và không gian sảnh.

Mặt bằng xây tường mái biệt thự 1 tầng hiện đại

Mặt bằng mát biệt thự 1 tầng hiện đại
Mặt đứng thiết kế biệt thự 1 tầng hiện đại

Mặt đứng trục A – D

Mặt đứng trục D – A

Mặt đứng trục 10 – 1
Mặt cắt thiết kế biệt thự 1 tầng hiện đại

Mặt cắt A – A

Mặt cắt 1 – 1

Mặt cắt 2 – 2
Hình ảnh phối cảnh thiết kế biệt thự 1 tầng hiện đại
Kiến trúc sư đã thiết kế mái lớn kết hợp với những mái nhỏ đem lại một quan hệ rất tốt về hình thức trong thiết kế biệt thự mái thái. Phía trên mái được bố trí ống khói lớn làm cho công trình có cảm giác bay cao hơn đem lại gía trị thẩm mỹ nhất định cho biệt thự 1 tầng. Kiến trúc mái được lợp bằng ngói màu ghi xanh kết hợp với màu trắng của tường trông rất hài hòa và hiện đại.
Trên tường được kẻ chỉ nhẹ nhàng làm phân ra những mảng nhỏ giúp cho người nhìn đối diện có cảm giác không bị thô hay trơ của một mảng tường phẳng. Hình thức cột sảnh chính và sảnh phụ được kiến trúc sư khéo léo đưa với một ngôn ngữ đã được tính toán rất kỹ trước khi đưa vào làm phù hợp với tổng thể kiến trúc biệt thự 1 tầng.
Những ô cửa sổ hay của đi được làm bằng nhôm hệ xingfa trông rất khỏe khoắn và màu sắc cũng rất bắt góp phần tôn lên dáng vẻ của ngôi nhà. Hệ giàn thép bên ngoài, với mái kính cường lực bên trên có thể giúp bạn ngồi uống cà phê bên dưới mà không lo bị mưa hay côn trùng rơi vào đồng thời làm phần phụ trang trí trong một kiến trúc tổng thể.

Phối cảnh thiết kế biệt thự hiện đại 1 tầng – v2

Phối cảnh thiết kế biệt thự hiện đại 1 tầng – v3
Chi phí
| Gói dịch vụ | Nội dung | SL | Đơn giá | Thành tiền |
| Thiết kế kiến trúc | Hồ sơ bao gồm:Kiến trúc, kết cấu, điện nước | 420 m2 | 125.000 | 52.500.000 Vnd |
Các bạn thấy mẫu biệt thự Trang Kim gửi đến đẹp chứ? Bạn có thích sống trong căn biêt thự như thế này?
Hy vọng thiết kế trên sẽ mang đến cho bạn một giải pháp cho không gian sống của mình. Nếu bạn vẫn đang loay hoay tìm kiếm, chúng tôi gửi tiếp đến bạn Mẫu biệt thự 1 tầng hiện đại hoặc bạn có thể xem chi tiết hơn tại Những mẫu thiết kế biệt thự chi tiết kèm mặt bằng
Và nếu bạn cần thêm sự tư vấn từ những chuyên gia giàu kinh nghiệm, đừng ngần ngại, hãy gọi ngay cho chúng tôi theo số 0985 999 895 (Zalo) hay email Gửi tư vấn
Chúc bạn sớm tìm được mẫu biệt thự ưng ý !

