Một không gian có thể nối tiếp, thông với các khu vực xung quanh về giao thông, tầm nhìn và sinh hoạt đang là trào lưu
Sát khí và cách khắc phục sát khí trong nhà
Trong thiết kế nhà ở từ xa xưa tới nay các nhà phong thủy luôn hướng tới các giá trị về địa lí tìm kiếm và xác định các
Căn hộ chữ L 44m2 tươi trẻ và năng động
“Diện tích chật hẹp sẽ không quan trọng nữa nếu sự quyến rũ bù đắp sự thiếu hụt không gian”. Những từ này được cho là
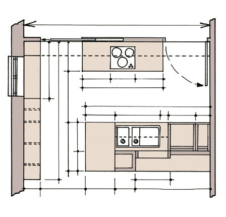
Thiết kế nhà bếp hiện đại với 20m2
20m2 là khoảng diện tích đủ để bạn có thể sắp xếp và bài trí một gian bếp tiện nghi cho ngôi nhà của mình. Sơ đồ bố
Căn hộ mini và những phương án thiết kế (P2)
Với cách lựa chọn và bài trí nội thất gọn gàng, khoa học, những căn hộ chung cư diện tích nhỏ hẹp từ 20 - 36m2 vẫn đảm
Căn hộ mini và những phương án thiết kế
Với cách lựa chọn và bài trí nội thất gọn gàng, khoa học, những căn hộ chung cư diện tích nhỏ hẹp từ 20 - 36m2 vẫn đảm
Căn hộ 40m2 phong cách trẻ trung
Đó là căn hộ rộng 40m2 với phong cách trang trí rất ngọt ngào, tươi trẻ, sức sống căng tràn. Sơ đồ thiết kế của căn
Đầy đủ chức năng trong căn hộ diện tích khiêm tốn 28m2
Với căn hộ có diện tích khiêm tốn 28m2 này, "thách thức" đặt ra là làm sao bố trí đầy đủ hết các chức năng trong không
Hoá giải dầm nhà trong căn hộ chung cư 60m2
Gia đình tôi mới mua căn hộ chung cư tái định cư, diện tích 60m2 gồm hai phòng ngủ và khách, bếp ăn. Khu vực khách và
Sắc tím cho phòng ngủ thêm lãng mạn
Phòng ngủ được decor bởi màu tím với nhiều sắc độ khác nhau mang đến cho bạn một không gian ngọt ngào và lãng mạn. Sắc
Ngôi nhà “mở” độc đáo ở Mỹ
Được xây dựng bởi nhóm kiếm trúc sư Xten, ngôi nhà Mở (OpenHouse) nằm trên ngọn đồi Hollywood có một thiết kế vô cùng
Tư vấn thiết kế nhà 3 tầng 4 phòng ngủ 6.5x10m có gara
Gia đình tôi có mảnh đất mặt tiền dài 10m, sâu 6,5m. Dự kiến xây nhà 2 tầng một tum với các yêu cầu như sau: Tầng 1
Sử dụng kệ treo tường ấn tượng trong nhà
Kệ treo tường là xu hướng thiết kế hiện đại nhằm lưu trữ đồ đạc nhỏ trong nhà, ngoài ra chúng cũng là điểm nhấn trang
Làm mới không gian cũ
Nhà ở lâu năm thường có những hư hỏng, phổ biến nhất là sự xuống cấp của bề mặt bên ngoài khiến ngôi nhà trở nên cũ kỹ,
Cách hóa giải nhà có cửa chính đối diện cửa hậu
Nhà tôi xây cách đây 5 năm theo kiến trúc biệt thự, phòng khách rộng và thoáng có thiết kế cửa hậu dẫn ra khu vực phía
Lưu ý khi thiết kế cửa chính và cửa sổ
Một ngôi nhà đẹp chính là sự kết hợp hài hoà giữa ba yếu tố công năng, thẩm mỹ và phong thuỷ. Để đạt được ba yếu tố này
Thiết kế phòng ăn và bếp theo xu hướng hiện đại
Trong thiết kế hiện đại, phòng ăn và bếp là nơi mang dấu ấn về cách sống của chủ nhân nhiều hơn cả. Hai khu vực này
Mô tip thiết kế đặc trưng cho nhà ống dài và hẹp
Nhà ống là phương án thiết kế điển hình trong những khu đô thị đất chật người đông với đặc trưng đất dài và hẹp. Tuỳ






















 
 
 
 
 
 